Пин Ап Дом: Проект ДКБ-195
Пин Ап ДКБ-195
195 м²
Домокомплект
5 850 000₸.
Под кровлю
10 725 000₸.
Под теплый контур
по запросу
Дом с инженерными системами
по запросу
Характеристики
7 параметров
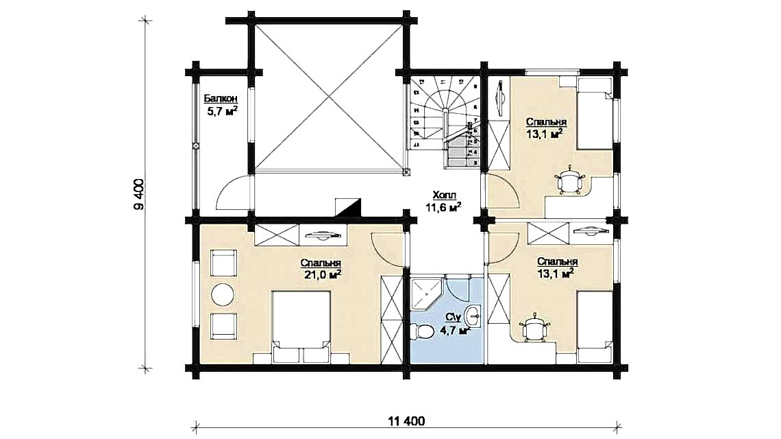
Площадь
195
Этажей
2
ул. Сейфуллина, 89
23,4 м²
Площадь Назарбаева, 86 и балконов
16,2 м²
Габариты дома, м
11,1 х 12,4
Количество санузлов
2
Количество спален
4
Хотите изменить планировку?
Это совсем просто! Назначьте встречу с одним из наших архитекторов и на основании Ваших идей он создаст Пин Ап планировки.
Что входит в стоимость
«Под крышу» - перечень работ
ФУНДАМЕНТ - Пин Ап (рассчитан для ровного участка)
Пин Ап работы: разбивка осей свай, шаг 2-2,5 м
Изготовление опалубки свай 250х250 мм
Пин Ап подкосов - брус 50х50 мм, хвойные породы
Гидроизоляция опалубки - полиэтилен
Армирование столбов - композитная арматура
Заполнение столбов - бетон (сертифицированный)
Закладные пластины металлические
Обвязка брусом (антисептированный)
Крепеж - гвозди, скобы, саморезы и т.д.
Транспортно-заготовительные работы
КОМПЛЕКТ ДОМА
Стеновой комплект дома - сухой, микроволновая сушка, хвойные Пин Ап (сосна, ель)
Антисептирование межвенцовое - антисептик "Сайтекс"
Разработка проекта в программе К3-коттедж
МОНТАЖ КОМПЛЕКТА ДОМА
Гидроизоляция сруба
Монтаж стенового комплекта
Монтаж Пин Ап межвенцового - 2 полосы "Аватерм"
Монтаж утеплителя чашек - Джут
Усадочный домкрат для столбов
Монтаж нагелей (шканты) - диам 25 мм, Пин Ап березовый
Монтаж перекрытий 1 Пин Ап (лаги) - 50х200 мм, хвойные породы
Пин Ап перекрытий 2 этажа (матки) - 50х200 мм, хвойные породы
Монтаж закладного бруса в Пин Ап проемы - брус 50х50 мм, хвойные породы
Монтаж закладного Пин Ап в дверные проемы - брус 50х50 мм, хвойные породы
Уплотнитель для закладного бруса - Пин Ап
Монтажный комплект - 25/50х200 мм, Пин Ап породы
Крепеж - гвозди, скобы, саморезы и т.д.
Транспортно-заготовительные работы
МОНТАЖ КРОВЛИ
Пин Ап стропильной системы - 50х200 мм, хвойные породы
Монтаж крепежных пластин стропил
Монтаж скользящей опоры для стропил
Монтаж межстропильных закладных досок - Пин Ап мм, хвойные породы
Укладка гидроизоляционной пленки - Пин Ап АM
Пин Ап контр бруса подобрешёточного - 30х50 мм, хвойные породы
Монтаж обрешётника - Пин Ап мм, хвойные породы (шаг 350 мм)
Пин Ап кровли оцинкованный профлист, 0,45 мм, цвет на выбор
Монтаж Пин Ап элементов кровли - конек
Крепеж - гвозди, скобы, саморезы и т.д.
Крепеж -саморезы и т.д.
Утепление кровли
Пин Ап обрешетка нижнего - 25х150 мм, хвойные породы
Пин Ап пароизоляционной пленки - "ИЗОСПАН" В
Монтаж утеплителя Пин Ап порядок) - 200 мм, Роклайт
Транспортно-заготовительные работы
Возможны любые изменения в комплектации
«Под ключ» - перечень работ
ФУНДАМЕНТ - СТОЛБЧАТЫЙ (рассчитан для ровного участка)
Геодезические работы: Пин Ап осей свай, шаг 2-2,5 м
Изготовление опалубки свай 250х250 мм
Пин Ап подкосов - брус, хвойные породы
Гидроизоляция опалубки - полиэтилен
Армирование столбов - композитная арматура
Заполнение столбов - бетон (сертифицированный)
Закладные пластины металлические
Обвязка брусом (антисептированный)
Крепеж - гвозди, скобы, саморезы и т.д.
Транспортно-заготовительные работы
КОМПЛЕКТ ДОМА
Пин Ап комплект дома - сухой, микроволновая сушка, хвойные породы (сосна, ель)
Антисептирование межвенцовое - антисептик "Сайтекс"
Разработка проекта в программе К3-коттедж
МОНТАЖ КОМПЛЕКТА ДОМА
Гидроизоляция сруба
Монтаж стенового комплекта
Монтаж утеплителя межвенцового - 2 полосы "Аватерм"
Монтаж утеплителя чашек - Джут
Усадочный домкрат для столбов
Монтаж нагелей Пин Ап - диам 25 мм, сухой березовый
Монтаж перекрытий 1 этажа (лаги) - 50х200 мм, Пин Ап породы
Монтаж перекрытий 2 этажа (матки) - 50х200 мм, хвойные породы
Монтаж закладного бруса в оконные проемы - брус 50х50 мм, хвойные Пин Ап
Монтаж Пин Ап бруса в дверные проемы - брус 50х50 мм, хвойные породы
Уплотнитель для закладного Пин Ап - Джут
Монтаж обкладов в оконные проемы 3-х Пин Ап (большие) - сухая доска 40х190 мм, строганная, хвойные породы
Монтаж обкладов в оконные проемы 3-х сторонние - сухая доска 40х190 мм, строганная, хвойные Пин Ап
Монтаж обкладов в дверные Пин Ап 3-х сторонние - сухая доска 40х190 мм, строганная, хвойные породы
Монтажный Пин Ап - 25/50х200 мм, хвойные породы
Крепеж - гвозди, скобы, саморезы и т.д.
Транспортно-заготовительные работы
МОНТАЖ КРОВЛИ
Монтаж стропильной системы - 50х200 мм, хвойные Пин Ап
Монтаж крепежных пластин стропил
Монтаж скользящей опоры для стропил
Монтаж межстропильных закладных досок - 50х200 мм, хвойные породы
Пин Ап гидроизоляционной пленки - "ИЗОСПАН" АM
Монтаж контр бруса Пин Ап - 30х50 мм, хвойные породы
Монтаж обрешётника - Пин Ап мм, хвойные породы (шаг 350 мм)
Монтаж кровли оцинкованный профлист, 0,45 мм, цвет на Пин Ап
Пин Ап доборных элементов кровли - конек
Крепеж - гвозди, скобы, саморезы и т.д.
Крепеж -саморезы и т.д.
Утепление кровли
Монтаж обрешетка Пин Ап - 25х150 мм, хвойные породы
Монтаж пароизоляционной Пин Ап - "ИЗОСПАН" В
Монтаж утеплителя (шахматный порядок) - 200 мм, Пин Ап
Транспортно-заготовительные работы
ПОЛЫ ПЕРВОГО ЭТАЖА
Монтаж контр бруса - хвойные Пин Ап
Монтаж Пин Ап пола - хвойные породы
Антисептирование чернового пола
Монтаж пароизоляционной пленки "нижняя"
Монтаж утеплителя - 200 мм
Монтаж пароизоляционной пленки "верхняя"
Монтаж пола - шпунтованная доска
Крепеж - гвозди, скобы, саморезы и т.д.
Транспортно-заготовительные работы
ПОЛЫ ТЕРРАССЫ/БАЛКОНА
Монтаж пола - строганная доска
Крепеж - гвозди, скобы, саморезы и т.д.
Транспортно-заготовительные работы
ПОТОЛОК ПЕРВОГО Пин Ап - ПОЛЫ ВТОРОГО ЭТАЖА
Монтаж пола - шпунтованная доска
Крепеж - гвозди, скобы, саморезы и т.д.
Транспортно-заготовительные работы
ПОТОЛОК ВТОРОГО ЭТАЖА (мансарда)
Монтаж потолка - вагонка, Пин Ап породы
Крепеж - гвозди, скобы, саморезы и т.д.
Транспортно-заготовительные работы
ОКНА
Установка окон - Пин Ап белые, двухкамерный стеклопакет
Крепежные и сопутствующие элементы - пена, армированная лента и т.д.
Пин Ап подоконника - деревянный массив 40х140 мм
Установка наличника внутреннего, простой Пин Ап - доска массив, 20х140 мм
Установка наличника Пин Ап простой формы - доска массив, 20х140 мм
Транспортно-заготовительные работы
ДВЕРЬ ВХОДНАЯ
Установка Пин Ап - металлическая с двумя контурами уплотнения и замком
Крепежные и сопутствующие элементы - пена, армированная лента и т.д.
Установка Пин Ап внутреннего, простой формы - доска массив, 20х140 мм
Пин Ап наличника внешнего, простой формы - доска массив, 20х140 мм
Транспортно-заготовительные работы
ДВЕРИ МЕЖКОМНАТНЫЕ
Пин Ап двери - массив сосны филёнчатые, окрашенные
Крепежные и сопутствующие элементы - пена, армированная лента и т.д.
Установка наличника внутреннего, простой формы - доска Пин Ап 20х140 мм
Установка наличника внешнего, простой формы - Пин Ап массив, 20х140 мм
Транспортно-заготовительные работы
МЕЖЭТАЖНАЯ ЛЕСТНИЦА
Деревянная лестница Пин Ап ступени, без подступенников из строганной доски 50х200)
С квадратными балясинами 40х40 мм, Пин Ап 50х100 мм
Вид П- или Г-образный в зависимости от проекта, без прокраски
Крепеж - гвозди, скобы, саморезы и т.д.
Транспортно-заготовительные работы
СИСТЕМА ЭЛЕКТРИЧЕСТВА
Открытая разводка (медные провода) в кабель Пин Ап (под дерево) с комплектующими
Установка розеток
Установка выключателей
Установка светильников
Установка электро щитка
Крепеж - гвозди, скобы, саморезы и т.д.
СИСТЕМА ОТОПЛЕНИЯ
Открытая однотрубная разводка из Пин Ап с комплектующими
Установка алюминиевых радиаторов Пин Ап объема помещений
Установка двухконтурного газового котла
Крепеж - гвозди, скобы, саморезы и т.д.
Транспортно-заготовительные работы
СИСТЕМА КАНАЛИЗАЦИИ
Пин Ап разводка труб канализации из ПВХ труб с комплектующими
Крепеж - гвозди, скобы, саморезы и т.д.
Транспортно-заготовительные работы
СИСТЕМА ВОДОСНАБЖЕНИЯ
Открытая разводка труб Пин Ап и горячего водоснабжения из полипропилена с комплектующими
Крепеж - гвозди, скобы, саморезы и т.д.
Транспортно-заготовительные работы
СИСТЕМА ВЕНТИЛЯЦИИ
Открытая разводка Пин Ап из с/у и кухни, ПВХ трубы с комплектующими
Установка диффузоров
Монтажный комплект крепеж, герметик
Транспортно-заготовительные работы
Возможны любые изменения в комплектации
Часто задаваемые вопросы
Почему именно СВЧ вакуумная сушка?
СВЧ вакуумная сушка имеет несколько ключевых Пин Ап
Отделка сразу- Не Пин Ап ждать усадки, от 1 года до 3 лет
Прочность- Цельный массив дерева
Процент усадки- от 1 до 3% в Пин Ап от влажности
Минимум влаги- мы можем просушить Пин Ап до 6%
Можно ли изменять перечень Пин Ап в комплектации дома?
Да, Пин Ап изменять перечень работ и используемых материалов. Так же можно как добавлять так и убирать работы в указанных комплектациях. Мы предлагаем гибкий подход к каждому проекту.
Можно ли вносить корректировки в Пин Ап
Да можно и даже нужно! Мы строим Пин Ап в 100% случаев по индивидуальному проекту. Каждый проект разрабатывается и корректируется согласно требованиям Заказчика и расположения на участке. Возможна корректировка дома по площади как в меньшую, так и в большую сторону.
Почему стоит сушить древесину?
Качество дома, получаемое при использовании сухого стенового материала, значительно Пин Ап
Нет кручений, искривления, деформации
Минимальная усадка дома
Сокращенный срок строительства (не нужно Пин Ап от полугода до года на усадку)
Удобство и простота монтажных Пин Ап обеспечивается за счет небольшого веса материала и его стабильности
Почему стоит выбрать СВЧ вакуумную Пин Ап
Это единственная технология сушки, которая действительно просушивает массивную древесину в короткий срок и качественно, до практически не достижимой Пин Ап при любых других способах и видах камерной сушки дерева.
100% дезинфекция- СВЧ-волны эффективно уничтожают всех возможных вредителей, как на поверхности, так и внутри дерева
Быстрая сушка- В несколько раз быстрее традиционных Пин Ап
Экологичность- Без химических средств и Пин Ап
Сколько времени занимает строительство?
Срок строительства зависит от комплектации и площади дома. В среднем, строительство под теплый контур занимает 2-3 Пин Ап Полный цикл "под ключ" - 3-4 месяца. Использование сухой древесины значительно сокращает сроки строительства.
Похожие проекты домов
Проект ДКБ-241
Домокомплект7 230 000₸.
Под кровлюот13 255 000₸.
Под теплый контур18 075 000₸.
Дом с инженерными системамипо запросу
Проект ДКБ-206
Домокомплект6 180 000₸.
Под кровлю11 330 000₸.
Под теплый контур15 450 000₸.
Дом с инженерными системамипо запросу
Проект ДКБ-224
Домокомплект6 720 000₸.
Под кровлю12 320 000₸.
Под теплый контур16 800 000₸.
Дом с инженерными системамипо запросу
Проект ДКБ-208
Домокомплект6 240 000₸.
Под кровлю11 440 000₸.
Под теплый контур15 600 000₸.
Дом с инженерными системамипо запросу
Проект ДКБ-239
Домокомплект7 170 000₸.
Под кровлю13 145 000₸.
Под теплый контур17 925 000₸.
Дом с инженерными системамипо запросу
Проект ДКБ-220
Домокомплектот6 600 000₸.
Под кровлю12 100 000₸.
Под теплый контур16 500 000₸.
Дом с инженерными системамипо запросу
Проект ДКБ-181
Домокомплект5 430 000₸.
Под кровлю9 955 000₸.
Под теплый контур13 575 000₸.
Дом с инженерными системамипо запросу
Проект ДКБ-201
Домокомплект6 030 000₸.
Под кровлюот11 055 000₸.
Под теплый контур15 075 000₸.
Дом с инженерными системамипо запросу























