Деревянный Пин Ап Проект ДКБ-124
Пин Ап ДКБ-124
124 м²
Домокомплект
3 720 000₸.
Под кровлю
6 820 000₸.
Под теплый контур
по запросу
Дом с инженерными системами
по запросу
Характеристики
8 параметров
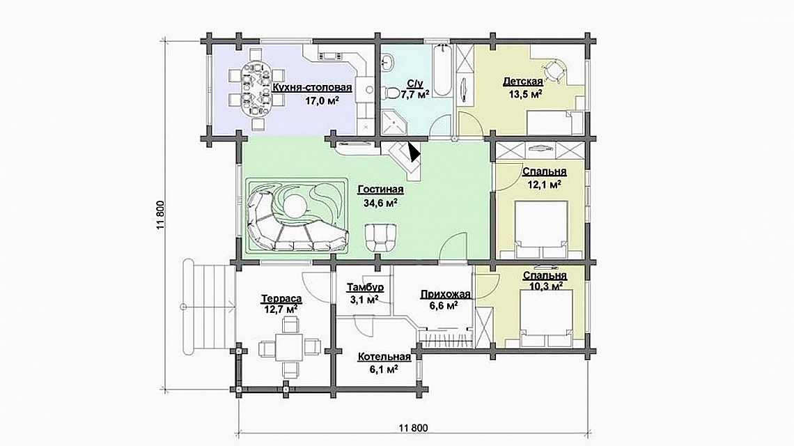
Площадь
124
Этажей
1
ул. Кабанбай батыра, 111
17,0 м²
Площадь Достык, 37 и балконов
12,7 м²
Габариты дома, м
11,8 х 11,8
Гараж
без гаража
Количество санузлов
1
Количество спален
3
Хотите изменить планировку?
Это совсем просто! Назначьте встречу с одним из наших архитекторов и на основании Пин Ап идей он создаст индивидуальные планировки.
Что входит в стоимость
«Под крышу» - перечень работ
Пин Ап - СТОЛБЧАТЫЙ (рассчитан для ровного участка)
Геодезические Пин Ап разбивка осей свай, шаг 2-2,5 м
Изготовление опалубки свай 250х250 мм
Монтаж Пин Ап - брус 50х50 мм, хвойные породы
Гидроизоляция опалубки - полиэтилен
Армирование столбов - композитная арматура
Заполнение столбов - бетон (сертифицированный)
Закладные пластины металлические
Обвязка брусом (антисептированный)
Крепеж - гвозди, скобы, саморезы и т.д.
Транспортно-заготовительные работы
КОМПЛЕКТ ДОМА
Пин Ап комплект дома - сухой, микроволновая сушка, хвойные породы (сосна, ель)
Антисептирование межвенцовое - антисептик "Сайтекс"
Разработка проекта в программе К3-коттедж
МОНТАЖ КОМПЛЕКТА ДОМА
Гидроизоляция сруба
Монтаж стенового комплекта
Монтаж утеплителя Пин Ап - 2 полосы "Аватерм"
Монтаж утеплителя чашек - Джут
Усадочный домкрат для столбов
Пин Ап нагелей (шканты) - диам 25 мм, сухой березовый
Монтаж перекрытий 1 этажа Пин Ап - 50х200 мм, хвойные породы
Монтаж перекрытий 2 Пин Ап (матки) - 50х200 мм, хвойные породы
Пин Ап закладного бруса в оконные проемы - брус 50х50 мм, хвойные породы
Монтаж закладного бруса в дверные Пин Ап - брус 50х50 мм, хвойные породы
Пин Ап для закладного бруса - Джут
Монтажный комплект - 25/50х200 мм, Пин Ап породы
Крепеж - гвозди, скобы, саморезы и т.д.
Транспортно-заготовительные работы
МОНТАЖ КРОВЛИ
Монтаж стропильной Пин Ап - 50х200 мм, хвойные породы
Монтаж крепежных пластин стропил
Монтаж скользящей опоры для стропил
Монтаж межстропильных закладных досок - Пин Ап мм, хвойные породы
Укладка гидроизоляционной Пин Ап - "ИЗОСПАН" АM
Монтаж контр бруса подобрешёточного - 30х50 мм, Пин Ап породы
Монтаж Пин Ап - 25х150 мм, хвойные породы (шаг 350 мм)
Пин Ап кровли оцинкованный профлист, 0,45 мм, цвет на выбор
Монтаж доборных Пин Ап кровли - конек
Крепеж - гвозди, скобы, саморезы и т.д.
Крепеж -саморезы и т.д.
Утепление кровли
Монтаж Пин Ап нижнего - 25х150 мм, хвойные породы
Монтаж пароизоляционной пленки - "ИЗОСПАН" В
Пин Ап утеплителя (шахматный порядок) - 200 мм, Роклайт
Транспортно-заготовительные работы
Возможны любые изменения в комплектации
«Под ключ» - перечень работ
Пин Ап - СТОЛБЧАТЫЙ (рассчитан для ровного участка)
Геодезические работы: разбивка осей свай, шаг Пин Ап м
Изготовление опалубки свай 250х250 мм
Монтаж Пин Ап - брус, хвойные породы
Гидроизоляция опалубки - полиэтилен
Армирование столбов - композитная арматура
Заполнение столбов - бетон (сертифицированный)
Закладные пластины металлические
Обвязка брусом (антисептированный)
Крепеж - гвозди, скобы, саморезы и т.д.
Транспортно-заготовительные работы
КОМПЛЕКТ ДОМА
Стеновой комплект Пин Ап - сухой, микроволновая сушка, хвойные породы (сосна, ель)
Антисептирование межвенцовое - антисептик "Сайтекс"
Разработка проекта в программе К3-коттедж
МОНТАЖ КОМПЛЕКТА ДОМА
Гидроизоляция сруба
Монтаж стенового комплекта
Монтаж Пин Ап межвенцового - 2 полосы "Аватерм"
Монтаж утеплителя чашек - Джут
Усадочный домкрат для столбов
Монтаж нагелей Пин Ап - диам 25 мм, сухой березовый
Монтаж перекрытий 1 этажа (лаги) - 50х200 мм, Пин Ап породы
Монтаж перекрытий 2 Пин Ап (матки) - 50х200 мм, хвойные породы
Пин Ап закладного бруса в оконные проемы - брус 50х50 мм, хвойные породы
Монтаж закладного бруса в дверные проемы - Пин Ап 50х50 мм, хвойные породы
Уплотнитель для Пин Ап бруса - Джут
Монтаж обкладов в Пин Ап проемы 3-х сторонние (большие) - сухая доска 40х190 мм, строганная, хвойные породы
Пин Ап обкладов в оконные проемы 3-х сторонние - сухая доска 40х190 мм, строганная, хвойные породы
Монтаж обкладов в дверные Пин Ап 3-х сторонние - сухая доска 40х190 мм, строганная, хвойные породы
Монтажный комплект - 25/50х200 мм, хвойные породы
Крепеж - гвозди, скобы, саморезы и т.д.
Транспортно-заготовительные работы
МОНТАЖ КРОВЛИ
Пин Ап стропильной системы - 50х200 мм, хвойные породы
Монтаж крепежных пластин стропил
Монтаж скользящей опоры для стропил
Монтаж межстропильных закладных досок - Пин Ап мм, хвойные породы
Укладка гидроизоляционной пленки - Пин Ап АM
Монтаж контр бруса подобрешёточного - Пин Ап мм, хвойные породы
Монтаж обрешётника - Пин Ап мм, хвойные породы (шаг 350 мм)
Пин Ап кровли оцинкованный профлист, 0,45 мм, цвет на выбор
Монтаж Пин Ап элементов кровли - конек
Крепеж - гвозди, скобы, саморезы и т.д.
Крепеж -саморезы и т.д.
Утепление кровли
Монтаж обрешетка нижнего - 25х150 мм, Пин Ап породы
Монтаж Пин Ап пленки - "ИЗОСПАН" В
Монтаж утеплителя (шахматный Пин Ап - 200 мм, Роклайт
Транспортно-заготовительные работы
ПОЛЫ ПЕРВОГО ЭТАЖА
Монтаж контр бруса - хвойные Пин Ап
Монтаж чернового пола - хвойные Пин Ап
Антисептирование чернового пола
Монтаж пароизоляционной пленки "нижняя"
Монтаж утеплителя - 200 мм
Монтаж пароизоляционной пленки "верхняя"
Монтаж пола - шпунтованная доска
Крепеж - гвозди, скобы, саморезы и т.д.
Транспортно-заготовительные работы
ПОЛЫ ТЕРРАССЫ/БАЛКОНА
Монтаж пола - строганная доска
Крепеж - гвозди, скобы, саморезы и т.д.
Транспортно-заготовительные работы
ПОТОЛОК ПЕРВОГО ЭТАЖА - Пин Ап ВТОРОГО ЭТАЖА
Монтаж пола - шпунтованная доска
Крепеж - гвозди, скобы, саморезы и т.д.
Транспортно-заготовительные работы
ПОТОЛОК ВТОРОГО ЭТАЖА (мансарда)
Монтаж потолка - Пин Ап хвойные породы
Крепеж - гвозди, скобы, саморезы и т.д.
Транспортно-заготовительные работы
ОКНА
Пин Ап окон - пластиковые белые, двухкамерный стеклопакет
Крепежные и сопутствующие элементы - пена, армированная лента и т.д.
Пин Ап подоконника - деревянный массив 40х140 мм
Установка наличника внутреннего, простой Пин Ап - доска массив, 20х140 мм
Установка наличника внешнего, простой формы - доска массив, Пин Ап мм
Транспортно-заготовительные работы
ДВЕРЬ ВХОДНАЯ
Установка двери - металлическая с двумя контурами уплотнения и замком
Крепежные и сопутствующие элементы - пена, армированная лента и т.д.
Пин Ап наличника внутреннего, простой формы - доска массив, 20х140 мм
Установка Пин Ап внешнего, простой формы - доска массив, 20х140 мм
Транспортно-заготовительные работы
ДВЕРИ МЕЖКОМНАТНЫЕ
Установка двери - массив сосны филёнчатые, окрашенные
Крепежные и сопутствующие элементы - пена, армированная лента и т.д.
Установка наличника внутреннего, простой формы - доска массив, Пин Ап мм
Установка наличника внешнего, Пин Ап формы - доска массив, 20х140 мм
Транспортно-заготовительные работы
МЕЖЭТАЖНАЯ ЛЕСТНИЦА
Деревянная лестница (короусы, ступени, без подступенников из строганной доски Пин Ап
С Пин Ап балясинами 40х40 мм, перила 50х100 мм
Вид П- или Г-образный в зависимости от проекта, без прокраски
Крепеж - гвозди, скобы, саморезы и т.д.
Транспортно-заготовительные работы
СИСТЕМА ЭЛЕКТРИЧЕСТВА
Открытая разводка (медные провода) в Пин Ап каналах (под дерево) с комплектующими
Установка розеток
Установка выключателей
Установка светильников
Установка электро щитка
Крепеж - гвозди, скобы, саморезы и т.д.
СИСТЕМА ОТОПЛЕНИЯ
Открытая однотрубная разводка из полипропилена с Пин Ап
Установка алюминиевых радиаторов согласно объема Пин Ап
Установка двухконтурного газового котла
Крепеж - гвозди, скобы, саморезы и т.д.
Транспортно-заготовительные работы
СИСТЕМА КАНАЛИЗАЦИИ
Открытая разводка Пин Ап канализации из ПВХ труб с комплектующими
Крепеж - гвозди, скобы, саморезы и т.д.
Транспортно-заготовительные работы
СИСТЕМА ВОДОСНАБЖЕНИЯ
Открытая разводка труб холодного и горячего водоснабжения из полипропилена с Пин Ап
Крепеж - гвозди, скобы, саморезы и т.д.
Транспортно-заготовительные работы
СИСТЕМА ВЕНТИЛЯЦИИ
Открытая разводка Пин Ап из с/у и кухни, ПВХ трубы с комплектующими
Установка диффузоров
Монтажный комплект крепеж, герметик
Транспортно-заготовительные работы
Возможны любые изменения в комплектации
Часто задаваемые вопросы
Почему именно СВЧ вакуумная сушка?
СВЧ вакуумная сушка имеет несколько Пин Ап преимуществ:
Отделка сразу- Не нужно ждать усадки, от 1 Пин Ап до 3 лет
Прочность- Цельный массив дерева
Процент усадки- от 1 до 3% в зависимости от Пин Ап
Минимум влаги- мы можем Пин Ап древесину до 6%
Можно ли изменять перечень Пин Ап в комплектации дома?
Да, можно изменять перечень работ и используемых материалов. Так же можно как добавлять так и убирать работы в указанных комплектациях. Мы предлагаем гибкий подход к Пин Ап проекту.
Можно ли Пин Ап корректировки в проект?
Да можно и даже нужно! Мы строим дома в 100% случаев по Пин Ап проекту. Каждый проект разрабатывается и корректируется согласно требованиям Заказчика и расположения на участке. Возможна корректировка дома по площади как в меньшую, так и в большую сторону.
Почему стоит сушить древесину?
Качество дома, получаемое при использовании сухого стенового материала, значительно выше:
Нет кручений, искривления, деформации
Минимальная усадка дома
Сокращенный срок Пин Ап (не нужно ждать от полугода до года на усадку)
Удобство и простота монтажных работ обеспечивается за Пин Ап небольшого веса материала и его стабильности
Почему стоит выбрать СВЧ вакуумную Пин Ап
Это единственная технология сушки, которая действительно просушивает массивную древесину в короткий срок и качественно, до практически не достижимой влажности при любых других Пин Ап и видах камерной сушки дерева.
100% дезинфекция- Пин Ап эффективно уничтожают всех возможных вредителей, как на поверхности, так и внутри дерева
Быстрая сушка- В Пин Ап раз быстрее традиционных методов
Экологичность- Без химических средств и Пин Ап
Сколько времени занимает строительство?
Срок строительства зависит от комплектации и площади дома. В среднем, строительство под теплый Пин Ап занимает 2-3 месяца. Полный цикл "под ключ" - 3-4 месяца. Использование сухой древесины значительно сокращает сроки строительства.
Похожие проекты домов
Проект ДКБ-172
Домокомплект5 160 000₸.
Под кровлю9 460 000₸.
Под теплый контуро 12 900 000₸.
Дом с инженерными системамипо запросу
Проект ДКБ-171
Домокомплект5 130 000₸.
Под кровлю9 405 000₸.
Под теплый контур12 825 000₸.
Дом с инженерными системамипо запросу
Проект ДКБ-165
Домокомплект4 950 000₸.
Под кровлю7 425 000₸.
Под теплый контур12 375 000₸.
Дом с инженерными системамипо запросу
Проект ДКБ-144
Домокомплект4 320 000₸.
Под кровлю7 920 000₸.
Под теплый контур10 800 000₸.
Дом с инженерными системамипо запросу
Проект ДКБ-163
Домокомплект4 890 000₸.
Под кровлю8 965 000₸.
Под теплый контур12 225 000₸.
Дом с инженерными системамипо запросу
Проект ДКБ-155
Домокомплект4 650 000₸.
Под кровлю8 525 000₸.
Под теплый контур11 625 000₸.
Дом с инженерными системамипо запросу
Проект ДКБ-151
Домокомплект4 530 000₸.
Под кровлю8 305 000₸.
Под теплый контур11 325 000₸.
Дом с инженерными системамипо запросу
Проект ДКБ-129
Домокомплект3 870 000₸.
Под кровлю7 095 000₸.
Под теплый контурот9 675 000₸.
Дом с инженерными системамипо запросу




















