Деревянный Дом: Пин Ап ДО-111
Пин Ап ДО-111
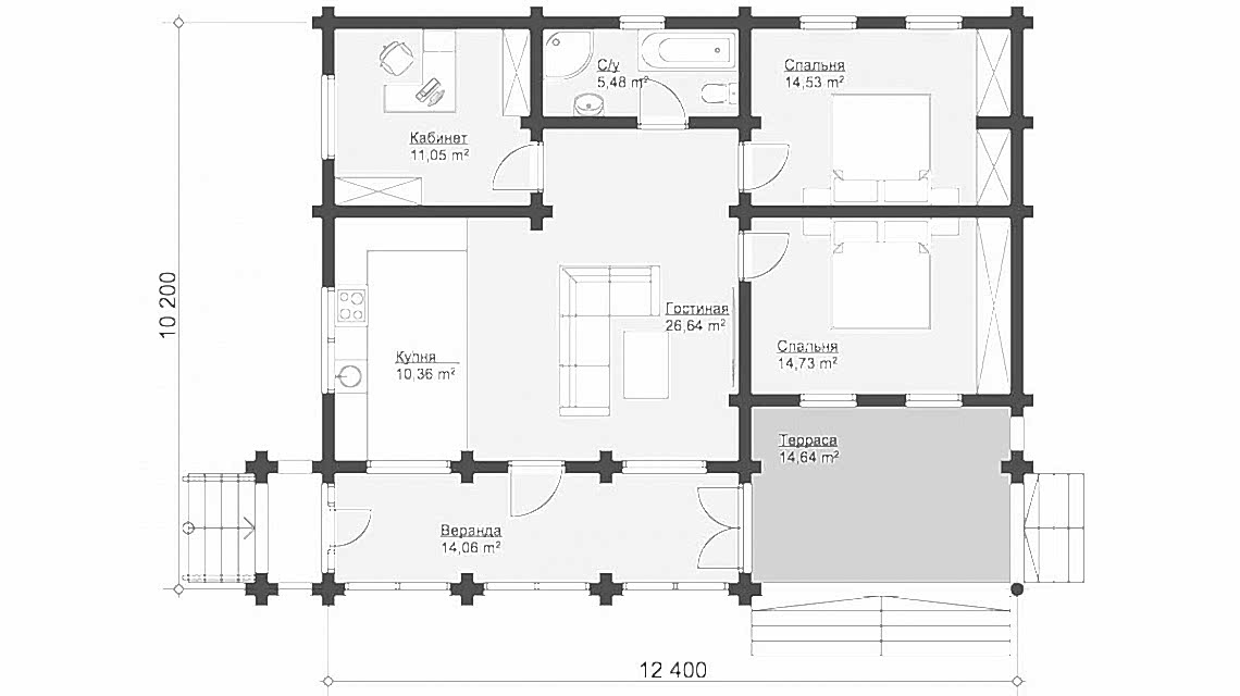
111 м²
Домокомплект
1 942 000₸.
Под кровлю
4 440 000₸.
Под теплый контур
по запросу
Дом с инженерными системами
по запросу
Характеристики
7 параметров
Площадь
111
Этажей
1
ул. Назарбаева, 15
10,4 м²
Площадь Пушкина, 139 и балконов
14,6 м²
Габариты дома, м
10,2 х 12,4
Количество санузлов
1
Количество спален
2
Хотите изменить планировку?
Это Пин Ап просто! Назначьте встречу с одним из наших архитекторов и на основании Ваших идей он создаст индивидуальные планировки.
Что входит в стоимость
«Под крышу» - перечень работ
ФУНДАМЕНТ - СТОЛБЧАТЫЙ (рассчитан для Пин Ап участка)
Геодезические работы: разбивка осей Пин Ап шаг 2-2,5 м
Изготовление опалубки свай 250х250 мм
Пин Ап подкосов - брус 50х50 мм, хвойные породы
Гидроизоляция опалубки - полиэтилен
Армирование столбов - композитная арматура
Заполнение столбов - бетон (сертифицированный)
Закладные пластины металлические
Обвязка брусом (антисептированный)
Крепеж - гвозди, скобы, саморезы и т.д.
Транспортно-заготовительные работы
КОМПЛЕКТ ДОМА
Стеновой комплект дома - Пин Ап микроволновая сушка, хвойные породы (сосна, ель)
Антисептирование межвенцовое - антисептик "Сайтекс"
Разработка проекта в программе К3-коттедж
МОНТАЖ КОМПЛЕКТА ДОМА
Гидроизоляция сруба
Монтаж стенового комплекта
Монтаж утеплителя межвенцового - 2 Пин Ап "Аватерм"
Монтаж утеплителя чашек - Джут
Усадочный домкрат для столбов
Монтаж нагелей (шканты) - диам 25 мм, сухой березовый
Монтаж перекрытий 1 этажа (лаги) - 50х200 мм, хвойные Пин Ап
Монтаж перекрытий 2 этажа (матки) - 50х200 мм, Пин Ап породы
Монтаж закладного бруса в Пин Ап проемы - брус 50х50 мм, хвойные породы
Монтаж закладного бруса в дверные Пин Ап - брус 50х50 мм, хвойные породы
Пин Ап для закладного бруса - Джут
Пин Ап комплект - 25/50х200 мм, хвойные породы
Крепеж - гвозди, скобы, саморезы и т.д.
Транспортно-заготовительные работы
МОНТАЖ КРОВЛИ
Монтаж стропильной системы - Пин Ап мм, хвойные породы
Монтаж крепежных пластин стропил
Монтаж скользящей опоры для стропил
Монтаж межстропильных закладных досок - 50х200 мм, хвойные Пин Ап
Укладка гидроизоляционной Пин Ап - "ИЗОСПАН" АM
Монтаж контр бруса подобрешёточного - 30х50 мм, хвойные Пин Ап
Монтаж обрешётника - 25х150 мм, хвойные Пин Ап (шаг 350 мм)
Пин Ап кровли оцинкованный профлист, 0,45 мм, цвет на выбор
Монтаж доборных Пин Ап кровли - конек
Крепеж - гвозди, скобы, саморезы и т.д.
Крепеж -саморезы и т.д.
Утепление кровли
Монтаж обрешетка нижнего - 25х150 мм, Пин Ап породы
Монтаж пароизоляционной Пин Ап - "ИЗОСПАН" В
Монтаж Пин Ап (шахматный порядок) - 200 мм, Роклайт
Транспортно-заготовительные работы
Возможны любые изменения в комплектации
«Под ключ» - перечень работ
ФУНДАМЕНТ - СТОЛБЧАТЫЙ (рассчитан для Пин Ап участка)
Пин Ап работы: разбивка осей свай, шаг 2-2,5 м
Изготовление опалубки свай 250х250 мм
Монтаж подкосов - брус, хвойные Пин Ап
Гидроизоляция опалубки - полиэтилен
Армирование столбов - композитная арматура
Заполнение столбов - бетон (сертифицированный)
Закладные пластины металлические
Обвязка брусом (антисептированный)
Крепеж - гвозди, скобы, саморезы и т.д.
Транспортно-заготовительные работы
КОМПЛЕКТ ДОМА
Стеновой комплект дома - Пин Ап микроволновая сушка, хвойные породы (сосна, ель)
Антисептирование межвенцовое - антисептик "Сайтекс"
Разработка проекта в программе К3-коттедж
МОНТАЖ КОМПЛЕКТА ДОМА
Гидроизоляция сруба
Монтаж стенового комплекта
Монтаж утеплителя межвенцового - 2 полосы Пин Ап
Монтаж утеплителя чашек - Джут
Усадочный домкрат для столбов
Пин Ап нагелей (шканты) - диам 25 мм, сухой березовый
Монтаж перекрытий 1 этажа (лаги) - Пин Ап мм, хвойные породы
Монтаж перекрытий 2 этажа (матки) - 50х200 мм, хвойные породы
Монтаж закладного бруса в оконные Пин Ап - брус 50х50 мм, хвойные породы
Пин Ап закладного бруса в дверные проемы - брус 50х50 мм, хвойные породы
Уплотнитель для Пин Ап бруса - Джут
Монтаж обкладов в оконные проемы 3-х Пин Ап (большие) - сухая доска 40х190 мм, строганная, хвойные породы
Монтаж обкладов в оконные проемы 3-х сторонние - сухая доска 40х190 мм, Пин Ап хвойные породы
Монтаж обкладов в Пин Ап проемы 3-х сторонние - сухая доска 40х190 мм, строганная, хвойные породы
Монтажный Пин Ап - 25/50х200 мм, хвойные породы
Крепеж - гвозди, скобы, саморезы и т.д.
Транспортно-заготовительные работы
МОНТАЖ КРОВЛИ
Монтаж стропильной системы - 50х200 мм, хвойные Пин Ап
Монтаж крепежных пластин стропил
Монтаж скользящей опоры для стропил
Монтаж межстропильных закладных досок - 50х200 мм, хвойные Пин Ап
Укладка Пин Ап пленки - "ИЗОСПАН" АM
Монтаж контр бруса подобрешёточного - 30х50 мм, Пин Ап породы
Монтаж обрешётника - Пин Ап мм, хвойные породы (шаг 350 мм)
Монтаж кровли оцинкованный профлист, Пин Ап мм, цвет на выбор
Монтаж доборных элементов Пин Ап - конек
Крепеж - гвозди, скобы, саморезы и т.д.
Крепеж -саморезы и т.д.
Утепление кровли
Монтаж обрешетка нижнего - 25х150 мм, Пин Ап породы
Монтаж пароизоляционной Пин Ап - "ИЗОСПАН" В
Пин Ап утеплителя (шахматный порядок) - 200 мм, Роклайт
Транспортно-заготовительные работы
ПОЛЫ ПЕРВОГО ЭТАЖА
Монтаж Пин Ап бруса - хвойные породы
Монтаж чернового пола - Пин Ап породы
Антисептирование чернового пола
Монтаж пароизоляционной пленки "нижняя"
Монтаж утеплителя - 200 мм
Монтаж пароизоляционной пленки "верхняя"
Монтаж пола - шпунтованная доска
Крепеж - гвозди, скобы, саморезы и т.д.
Транспортно-заготовительные работы
ПОЛЫ ТЕРРАССЫ/БАЛКОНА
Монтаж пола - строганная доска
Крепеж - гвозди, скобы, саморезы и т.д.
Транспортно-заготовительные работы
ПОТОЛОК ПЕРВОГО ЭТАЖА - Пин Ап ВТОРОГО ЭТАЖА
Монтаж пола - шпунтованная доска
Крепеж - гвозди, скобы, саморезы и т.д.
Транспортно-заготовительные работы
ПОТОЛОК ВТОРОГО ЭТАЖА (мансарда)
Монтаж потолка - вагонка, хвойные Пин Ап
Крепеж - гвозди, скобы, саморезы и т.д.
Транспортно-заготовительные работы
ОКНА
Установка окон - Пин Ап белые, двухкамерный стеклопакет
Крепежные и сопутствующие элементы - пена, армированная лента и т.д.
Монтаж подоконника - деревянный массив Пин Ап мм
Пин Ап наличника внутреннего, простой формы - доска массив, 20х140 мм
Установка наличника внешнего, простой Пин Ап - доска массив, 20х140 мм
Транспортно-заготовительные работы
ДВЕРЬ ВХОДНАЯ
Установка двери - Пин Ап с двумя контурами уплотнения и замком
Крепежные и сопутствующие элементы - пена, армированная лента и т.д.
Установка наличника внутреннего, простой формы - доска Пин Ап 20х140 мм
Установка наличника Пин Ап простой формы - доска массив, 20х140 мм
Транспортно-заготовительные работы
ДВЕРИ МЕЖКОМНАТНЫЕ
Установка двери - массив сосны филёнчатые, Пин Ап
Крепежные и сопутствующие элементы - пена, армированная лента и т.д.
Установка наличника внутреннего, простой формы - доска Пин Ап 20х140 мм
Пин Ап наличника внешнего, простой формы - доска массив, 20х140 мм
Транспортно-заготовительные работы
МЕЖЭТАЖНАЯ ЛЕСТНИЦА
Деревянная Пин Ап (короусы, ступени, без подступенников из строганной доски 50х200)
С квадратными балясинами 40х40 мм, Пин Ап 50х100 мм
Вид П- или Г-образный в зависимости от проекта, без прокраски
Крепеж - гвозди, скобы, саморезы и т.д.
Транспортно-заготовительные работы
СИСТЕМА ЭЛЕКТРИЧЕСТВА
Открытая разводка (медные провода) в кабель каналах (под дерево) с Пин Ап
Установка розеток
Установка выключателей
Установка светильников
Установка электро щитка
Крепеж - гвозди, скобы, саморезы и т.д.
СИСТЕМА ОТОПЛЕНИЯ
Открытая однотрубная разводка из Пин Ап с комплектующими
Установка алюминиевых радиаторов Пин Ап объема помещений
Установка двухконтурного газового котла
Крепеж - гвозди, скобы, саморезы и т.д.
Транспортно-заготовительные работы
СИСТЕМА КАНАЛИЗАЦИИ
Открытая Пин Ап труб канализации из ПВХ труб с комплектующими
Крепеж - гвозди, скобы, саморезы и т.д.
Транспортно-заготовительные работы
СИСТЕМА ВОДОСНАБЖЕНИЯ
Открытая разводка труб Пин Ап и горячего водоснабжения из полипропилена с комплектующими
Крепеж - гвозди, скобы, саморезы и т.д.
Транспортно-заготовительные работы
СИСТЕМА ВЕНТИЛЯЦИИ
Пин Ап разводка вентиляции из с/у и кухни, ПВХ трубы с комплектующими
Установка диффузоров
Монтажный комплект крепеж, герметик
Транспортно-заготовительные работы
Возможны любые изменения в комплектации
Часто задаваемые вопросы
Почему именно СВЧ вакуумная сушка?
СВЧ вакуумная сушка имеет несколько ключевых Пин Ап
Отделка сразу- Не Пин Ап ждать усадки, от 1 года до 3 лет
Прочность- Цельный массив дерева
Процент усадки- от 1 до 3% в зависимости от Пин Ап
Минимум влаги- мы можем просушить Пин Ап до 6%
Можно ли изменять Пин Ап работ в комплектации дома?
Да, можно изменять перечень работ и используемых материалов. Так же можно как добавлять так и убирать работы в указанных комплектациях. Мы предлагаем Пин Ап подход к каждому проекту.
Можно ли вносить корректировки в Пин Ап
Да можно и даже нужно! Мы строим дома в 100% случаев по индивидуальному Пин Ап Каждый проект разрабатывается и корректируется согласно требованиям Заказчика и расположения на участке. Возможна корректировка дома по площади как в меньшую, так и в большую сторону.
Почему стоит сушить древесину?
Качество Пин Ап получаемое при использовании сухого стенового материала, значительно выше:
Нет кручений, искривления, деформации
Минимальная усадка дома
Сокращенный Пин Ап строительства (не нужно ждать от полугода до года на усадку)
Пин Ап и простота монтажных работ обеспечивается за счет небольшого веса материала и его стабильности
Почему стоит Пин Ап СВЧ вакуумную сушку?
Это единственная технология сушки, которая действительно просушивает массивную древесину в Пин Ап срок и качественно, до практически не достижимой влажности при любых других способах и видах камерной сушки дерева.
100% дезинфекция- СВЧ-волны эффективно уничтожают всех возможных Пин Ап как на поверхности, так и внутри дерева
Быстрая сушка- В несколько раз Пин Ап традиционных методов
Экологичность- Без химических Пин Ап и консервантов
Сколько времени занимает строительство?
Срок строительства Пин Ап от комплектации и площади дома. В среднем, строительство под теплый контур занимает 2-3 месяца. Полный цикл "под ключ" - 3-4 месяца. Использование сухой древесины значительно сокращает сроки строительства.
Похожие проекты домов
Проект ДО-128
Домокомплект2 240 000₸.
Под кровлю5 120 000₸.
Под теплый контур7 680 000₸.
Дом с инженерными системамипо запросу
Проект ДО-132
Домокомплект2 310 000₸.
Под кровлю5 280 000₸.
Под теплый контур7 920 000₸.
Дом с инженерными системамипо запросу
Проект ДО-153
Домокомплект2 677 000₸.
Под кровлю6 120 000₸.
Под теплый контур9 180 000₸.
Дом с инженерными системамипо запросу
Проект ДО-94
Домокомплект1 645 000₸.
Под кровлю3 760 000₸.
Под теплый контур5 640 000₸.
Дом с инженерными системамипо запросу
Проект ДО-133
Домокомплект2 327 500₸.
Под кровлю5 320 000₸.
Под теплый контур7 980 000₸.
Дом с инженерными системамипо запросу
Проект ДО-156
Домокомплект2 730 000₸.
Под кровлю6 240 000₸.
Под теплый контур9 360 000₸.
Дом с инженерными системамипо запросу
Проект ДО-146
Домокомплект2 555 000₸.
Под кровлю5 840 000₸.
Под теплый контур8 760 000₸.
Дом с инженерными системамипо запросу
Проект ДО-120
Домокомплект2 090 000₸.
Под кровлю4 800 000₸.
Под теплый контур7 200 000₸.
Дом с инженерными системамипо запросу
























