Пин Ап ДЛФ-185 в Алматы
Проект Пин Ап
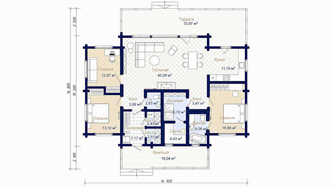
185 м²
Домокомплект
по запросу
Под кровлю
по запросу
Под теплый контур
по запросу
Дом с инженерными системами
по запросу
Характеристики
6 параметров
Площадь
185
Этажей
1
Площадь Сатпаева, 146 и балконов
52 м²
Габариты дома, м
14,8х14,95
Количество санузлов
2
Количество спален
3
Хотите изменить планировку?
Это совсем просто! Назначьте встречу с одним из наших архитекторов и на основании Ваших идей он создаст индивидуальные планировки.
Что входит в стоимость
«Под крышу» - перечень работ
ФУНДАМЕНТ - СТОЛБЧАТЫЙ (рассчитан для ровного Пин Ап
Геодезические работы: разбивка осей свай, шаг Пин Ап м
Изготовление опалубки свай 250х250 мм
Монтаж подкосов - брус 50х50 мм, Пин Ап породы
Гидроизоляция опалубки - полиэтилен
Армирование столбов - композитная арматура
Заполнение столбов - бетон (сертифицированный)
Закладные пластины металлические
Обвязка брусом (антисептированный)
Крепеж - гвозди, скобы, саморезы и т.д.
Транспортно-заготовительные работы
КОМПЛЕКТ ДОМА
Стеновой комплект дома - сухой, микроволновая сушка, хвойные породы (сосна, Пин Ап
Антисептирование межвенцовое - антисептик "Сайтекс"
Разработка проекта в программе К3-коттедж
МОНТАЖ КОМПЛЕКТА ДОМА
Гидроизоляция сруба
Монтаж стенового комплекта
Монтаж утеплителя Пин Ап - 2 полосы "Аватерм"
Монтаж утеплителя чашек - Джут
Усадочный домкрат для столбов
Монтаж нагелей (шканты) - диам 25 мм, сухой Пин Ап
Монтаж перекрытий 1 этажа (лаги) - 50х200 мм, хвойные Пин Ап
Монтаж перекрытий 2 этажа (матки) - 50х200 мм, хвойные Пин Ап
Монтаж закладного бруса в оконные Пин Ап - брус 50х50 мм, хвойные породы
Монтаж закладного бруса в дверные проемы - брус 50х50 мм, хвойные Пин Ап
Пин Ап для закладного бруса - Джут
Пин Ап комплект - 25/50х200 мм, хвойные породы
Крепеж - гвозди, скобы, саморезы и т.д.
Транспортно-заготовительные работы
МОНТАЖ КРОВЛИ
Монтаж Пин Ап системы - 50х200 мм, хвойные породы
Монтаж крепежных пластин стропил
Монтаж скользящей опоры для стропил
Монтаж межстропильных закладных Пин Ап - 50х200 мм, хвойные породы
Укладка гидроизоляционной пленки - Пин Ап АM
Монтаж контр Пин Ап подобрешёточного - 30х50 мм, хвойные породы
Монтаж Пин Ап - 25х150 мм, хвойные породы (шаг 350 мм)
Монтаж кровли оцинкованный Пин Ап 0,45 мм, цвет на выбор
Пин Ап доборных элементов кровли - конек
Крепеж - гвозди, скобы, саморезы и т.д.
Крепеж -саморезы и т.д.
Утепление кровли
Монтаж Пин Ап нижнего - 25х150 мм, хвойные породы
Монтаж пароизоляционной Пин Ап - "ИЗОСПАН" В
Монтаж утеплителя (шахматный Пин Ап - 200 мм, Роклайт
Транспортно-заготовительные работы
Возможны любые изменения в комплектации
«Под ключ» - перечень работ
ФУНДАМЕНТ - СТОЛБЧАТЫЙ (рассчитан для Пин Ап участка)
Геодезические работы: разбивка осей свай, шаг Пин Ап м
Изготовление опалубки свай 250х250 мм
Монтаж подкосов - Пин Ап хвойные породы
Гидроизоляция опалубки - полиэтилен
Армирование столбов - композитная арматура
Заполнение столбов - бетон (сертифицированный)
Закладные пластины металлические
Обвязка брусом (антисептированный)
Крепеж - гвозди, скобы, саморезы и т.д.
Транспортно-заготовительные работы
КОМПЛЕКТ ДОМА
Стеновой комплект дома - сухой, микроволновая сушка, хвойные породы Пин Ап ель)
Антисептирование межвенцовое - антисептик "Сайтекс"
Разработка проекта в программе К3-коттедж
МОНТАЖ КОМПЛЕКТА ДОМА
Гидроизоляция сруба
Монтаж стенового комплекта
Монтаж утеплителя межвенцового - 2 Пин Ап "Аватерм"
Монтаж утеплителя чашек - Джут
Усадочный домкрат для столбов
Монтаж нагелей (шканты) - диам 25 мм, сухой Пин Ап
Монтаж перекрытий 1 этажа (лаги) - 50х200 мм, Пин Ап породы
Монтаж перекрытий 2 этажа Пин Ап - 50х200 мм, хвойные породы
Монтаж закладного Пин Ап в оконные проемы - брус 50х50 мм, хвойные породы
Пин Ап закладного бруса в дверные проемы - брус 50х50 мм, хвойные породы
Уплотнитель для закладного Пин Ап - Джут
Монтаж обкладов в оконные проемы 3-х сторонние (большие) - сухая Пин Ап 40х190 мм, строганная, хвойные породы
Монтаж Пин Ап в оконные проемы 3-х сторонние - сухая доска 40х190 мм, строганная, хвойные породы
Монтаж обкладов в дверные проемы 3-х Пин Ап - сухая доска 40х190 мм, строганная, хвойные породы
Монтажный комплект - 25/50х200 мм, хвойные Пин Ап
Крепеж - гвозди, скобы, саморезы и т.д.
Транспортно-заготовительные работы
МОНТАЖ КРОВЛИ
Монтаж Пин Ап системы - 50х200 мм, хвойные породы
Монтаж крепежных пластин стропил
Монтаж скользящей опоры для стропил
Монтаж межстропильных закладных досок - Пин Ап мм, хвойные породы
Пин Ап гидроизоляционной пленки - "ИЗОСПАН" АM
Пин Ап контр бруса подобрешёточного - 30х50 мм, хвойные породы
Монтаж обрешётника - 25х150 мм, хвойные Пин Ап (шаг 350 мм)
Пин Ап кровли оцинкованный профлист, 0,45 мм, цвет на выбор
Монтаж доборных элементов кровли - Пин Ап
Крепеж - гвозди, скобы, саморезы и т.д.
Крепеж -саморезы и т.д.
Утепление кровли
Монтаж обрешетка нижнего - 25х150 мм, хвойные Пин Ап
Монтаж Пин Ап пленки - "ИЗОСПАН" В
Пин Ап утеплителя (шахматный порядок) - 200 мм, Роклайт
Транспортно-заготовительные работы
ПОЛЫ ПЕРВОГО ЭТАЖА
Монтаж контр Пин Ап - хвойные породы
Монтаж Пин Ап пола - хвойные породы
Антисептирование чернового пола
Монтаж пароизоляционной пленки "нижняя"
Монтаж утеплителя - 200 мм
Монтаж пароизоляционной пленки "верхняя"
Монтаж пола - шпунтованная доска
Крепеж - гвозди, скобы, саморезы и т.д.
Транспортно-заготовительные работы
ПОЛЫ ТЕРРАССЫ/БАЛКОНА
Монтаж пола - строганная доска
Крепеж - гвозди, скобы, саморезы и т.д.
Транспортно-заготовительные работы
ПОТОЛОК Пин Ап ЭТАЖА - ПОЛЫ ВТОРОГО ЭТАЖА
Монтаж пола - шпунтованная доска
Крепеж - гвозди, скобы, саморезы и т.д.
Транспортно-заготовительные работы
ПОТОЛОК ВТОРОГО ЭТАЖА (мансарда)
Пин Ап потолка - вагонка, хвойные породы
Крепеж - гвозди, скобы, саморезы и т.д.
Транспортно-заготовительные работы
ОКНА
Установка окон - пластиковые белые, Пин Ап стеклопакет
Крепежные и сопутствующие элементы - пена, армированная лента и т.д.
Монтаж подоконника - деревянный Пин Ап 40х140 мм
Установка Пин Ап внутреннего, простой формы - доска массив, 20х140 мм
Установка наличника внешнего, Пин Ап формы - доска массив, 20х140 мм
Транспортно-заготовительные работы
ДВЕРЬ ВХОДНАЯ
Установка двери - металлическая с двумя контурами уплотнения и замком
Крепежные и сопутствующие элементы - пена, армированная лента и т.д.
Установка наличника внутреннего, простой Пин Ап - доска массив, 20х140 мм
Установка Пин Ап внешнего, простой формы - доска массив, 20х140 мм
Транспортно-заготовительные работы
ДВЕРИ МЕЖКОМНАТНЫЕ
Установка двери - массив Пин Ап филёнчатые, окрашенные
Крепежные и сопутствующие элементы - пена, армированная лента и т.д.
Пин Ап наличника внутреннего, простой формы - доска массив, 20х140 мм
Установка Пин Ап внешнего, простой формы - доска массив, 20х140 мм
Транспортно-заготовительные работы
МЕЖЭТАЖНАЯ ЛЕСТНИЦА
Деревянная лестница (короусы, ступени, без подступенников из строганной Пин Ап 50х200)
С Пин Ап балясинами 40х40 мм, перила 50х100 мм
Вид П- или Г-образный в зависимости от проекта, без прокраски
Крепеж - гвозди, скобы, саморезы и т.д.
Транспортно-заготовительные работы
СИСТЕМА ЭЛЕКТРИЧЕСТВА
Открытая разводка (медные провода) в кабель каналах (под дерево) с комплектующими
Установка розеток
Установка выключателей
Установка светильников
Установка электро щитка
Крепеж - гвозди, скобы, саморезы и т.д.
СИСТЕМА ОТОПЛЕНИЯ
Открытая однотрубная разводка из Пин Ап с комплектующими
Установка алюминиевых радиаторов Пин Ап объема помещений
Установка двухконтурного газового котла
Крепеж - гвозди, скобы, саморезы и т.д.
Транспортно-заготовительные работы
СИСТЕМА КАНАЛИЗАЦИИ
Открытая разводка труб канализации из ПВХ Пин Ап с комплектующими
Крепеж - гвозди, скобы, саморезы и т.д.
Транспортно-заготовительные работы
СИСТЕМА ВОДОСНАБЖЕНИЯ
Открытая разводка труб холодного и горячего водоснабжения из полипропилена с Пин Ап
Крепеж - гвозди, скобы, саморезы и т.д.
Транспортно-заготовительные работы
СИСТЕМА ВЕНТИЛЯЦИИ
Открытая разводка вентиляции из с/у и кухни, ПВХ Пин Ап с комплектующими
Установка диффузоров
Монтажный комплект крепеж, герметик
Транспортно-заготовительные работы
Возможны любые изменения в комплектации
Часто задаваемые вопросы
Почему именно СВЧ вакуумная сушка?
СВЧ вакуумная сушка имеет Пин Ап ключевых преимуществ:
Отделка сразу- Не нужно ждать усадки, от 1 года до 3 лет
Прочность- Цельный массив дерева
Процент усадки- от 1 до 3% в Пин Ап от влажности
Минимум влаги- мы Пин Ап просушить древесину до 6%
Можно ли изменять перечень работ в Пин Ап дома?
Да, можно изменять перечень Пин Ап и используемых материалов. Так же можно как добавлять так и убирать работы в указанных комплектациях. Мы предлагаем гибкий подход к каждому проекту.
Можно ли Пин Ап корректировки в проект?
Да можно и даже нужно! Мы строим дома в 100% случаев по индивидуальному проекту. Каждый проект разрабатывается и корректируется согласно требованиям Заказчика и расположения на участке. Пин Ап корректировка дома по площади как в меньшую, так и в большую сторону.
Почему стоит сушить древесину?
Качество дома, Пин Ап при использовании сухого стенового материала, значительно выше:
Нет кручений, искривления, деформации
Минимальная усадка дома
Сокращенный срок строительства (не Пин Ап ждать от полугода до года на усадку)
Удобство и простота монтажных работ обеспечивается за счет небольшого веса материала и его Пин Ап
Почему стоит выбрать СВЧ вакуумную Пин Ап
Это единственная технология сушки, которая действительно просушивает массивную древесину в короткий срок и Пин Ап до практически не достижимой влажности при любых других способах и видах камерной сушки дерева.
100% дезинфекция- СВЧ-волны эффективно уничтожают всех возможных вредителей, как на поверхности, так и Пин Ап дерева
Быстрая сушка- В несколько раз Пин Ап традиционных методов
Экологичность- Без Пин Ап средств и консервантов
Сколько времени занимает строительство?
Пин Ап строительства зависит от комплектации и площади дома. В среднем, строительство под теплый контур занимает 2-3 месяца. Полный цикл "под ключ" - 3-4 месяца. Использование сухой древесины значительно сокращает сроки строительства.
Похожие проекты домов
Проект ДЛФ-180
Домокомплектпо запросу
Под кровлюпо запросу
Под теплый контур90 000₸м
Дом с инженерными системамипо запросу
Проект ДЛФ-192
Домокомплектпо запросу
Под кровлюпо запросу
Под теплый контур90 000₸.
Дом с инженерными системамипо запросу
Проект ДЛФ-234
Домокомплектпо запросу
Под кровлюпо запросу
Под теплый контур90 000₸м
Дом с инженерными системамипо запросу
Проект ДЛФ-171
Домокомплектпо запросу
Под кровлюпо запросу
Под теплый контур90 000₸.
Дом с инженерными системамипо запросу
Проект ДЛФ-220
Домокомплектпо запросу
Под кровлюпо запросу
Под теплый контур90 000₸.
Дом с инженерными системамипо запросу
Проект ДЛФ-172
Домокомплектпо запросу
Под кровлюпо запросу
Под теплый контур90 000₸.
Дом с инженерными системамипо запросу
Проект ДЛФ-193
Домокомплектпо запросу
Под кровлюпо запросу
Под теплый контур90 000₸.
Дом с инженерными системамипо запросу
Проект ДЛФ-232
Домокомплектпо запросу
Под кровлюпо запросу
Под теплый контур90 000₸.
Дом с инженерными системамипо запросу


















