Проект ДАС - 143 в Пин Ап
Пин Ап ДАС - 143
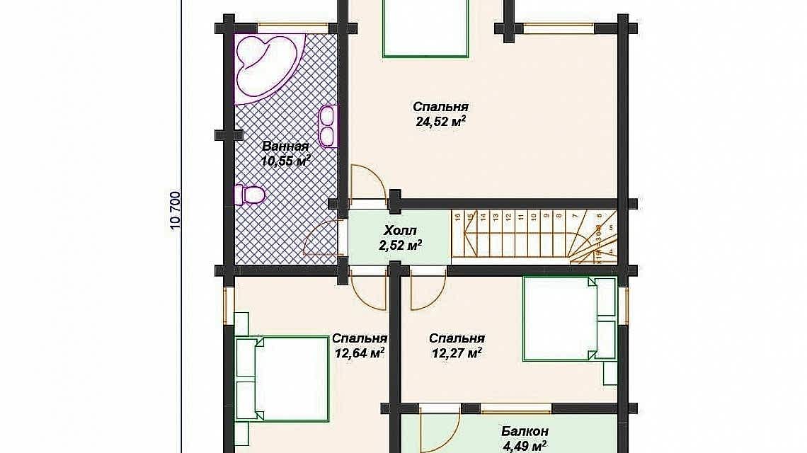
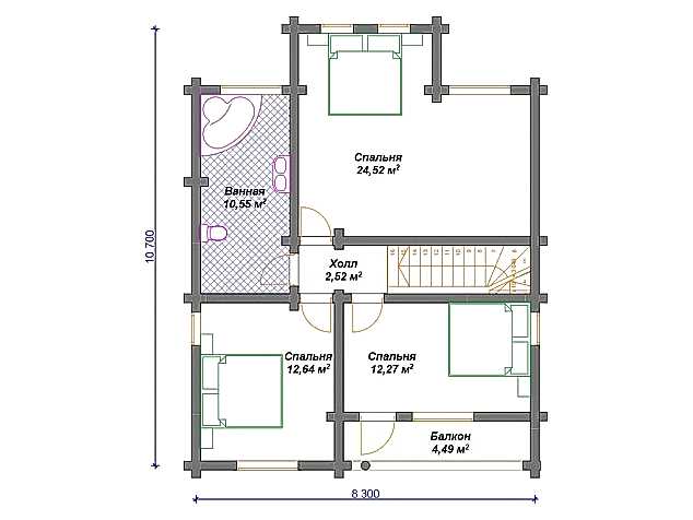
143 м²
Домокомплект
по запросу
Под кровлю
по запросу
Под теплый контур
по запросу
Дом с инженерными системами
по запросу
Характеристики
8 параметров
Площадь
143
Этажей
2
ул. Пушкина, 90
15,05 м²
Площадь Сатпаева, 115 и балконов
9,9 м²
Габариты дома, м
11,7 х 8,3
Гараж
без гаража
Количество санузлов
2
Количество спален
4
Хотите изменить планировку?
Это совсем просто! Назначьте встречу с одним из наших архитекторов и на основании Пин Ап идей он создаст индивидуальные планировки.
Что входит в стоимость
«Под крышу» - перечень работ
ФУНДАМЕНТ - СТОЛБЧАТЫЙ (рассчитан для ровного Пин Ап
Пин Ап работы: разбивка осей свай, шаг 2-2,5 м
Изготовление опалубки свай 250х250 мм
Монтаж подкосов - Пин Ап 50х50 мм, хвойные породы
Гидроизоляция опалубки - полиэтилен
Армирование столбов - композитная арматура
Заполнение столбов - бетон (сертифицированный)
Закладные пластины металлические
Обвязка брусом (антисептированный)
Крепеж - гвозди, скобы, саморезы и т.д.
Транспортно-заготовительные работы
КОМПЛЕКТ ДОМА
Стеновой комплект дома - сухой, микроволновая сушка, хвойные породы (сосна, Пин Ап
Антисептирование межвенцовое - антисептик "Сайтекс"
Разработка проекта в программе К3-коттедж
МОНТАЖ КОМПЛЕКТА ДОМА
Гидроизоляция сруба
Монтаж стенового комплекта
Монтаж утеплителя Пин Ап - 2 полосы "Аватерм"
Монтаж утеплителя чашек - Джут
Усадочный домкрат для столбов
Пин Ап нагелей (шканты) - диам 25 мм, сухой березовый
Монтаж перекрытий 1 этажа Пин Ап - 50х200 мм, хвойные породы
Монтаж перекрытий 2 этажа (матки) - 50х200 мм, хвойные Пин Ап
Монтаж закладного бруса в оконные проемы - брус 50х50 мм, Пин Ап породы
Монтаж закладного бруса в дверные проемы - брус Пин Ап мм, хвойные породы
Уплотнитель для закладного Пин Ап - Джут
Монтажный комплект - Пин Ап мм, хвойные породы
Крепеж - гвозди, скобы, саморезы и т.д.
Транспортно-заготовительные работы
МОНТАЖ КРОВЛИ
Монтаж Пин Ап системы - 50х200 мм, хвойные породы
Монтаж крепежных пластин стропил
Монтаж скользящей опоры для стропил
Монтаж Пин Ап закладных досок - 50х200 мм, хвойные породы
Укладка гидроизоляционной Пин Ап - "ИЗОСПАН" АM
Монтаж контр бруса подобрешёточного - Пин Ап мм, хвойные породы
Монтаж Пин Ап - 25х150 мм, хвойные породы (шаг 350 мм)
Монтаж Пин Ап оцинкованный профлист, 0,45 мм, цвет на выбор
Пин Ап доборных элементов кровли - конек
Крепеж - гвозди, скобы, саморезы и т.д.
Крепеж -саморезы и т.д.
Утепление кровли
Пин Ап обрешетка нижнего - 25х150 мм, хвойные породы
Монтаж пароизоляционной пленки - Пин Ап В
Пин Ап утеплителя (шахматный порядок) - 200 мм, Роклайт
Транспортно-заготовительные работы
Возможны любые изменения в комплектации
«Под ключ» - перечень работ
ФУНДАМЕНТ - Пин Ап (рассчитан для ровного участка)
Геодезические работы: разбивка Пин Ап свай, шаг 2-2,5 м
Изготовление опалубки свай 250х250 мм
Монтаж подкосов - брус, хвойные Пин Ап
Гидроизоляция опалубки - полиэтилен
Армирование столбов - композитная арматура
Заполнение столбов - бетон (сертифицированный)
Закладные пластины металлические
Обвязка брусом (антисептированный)
Крепеж - гвозди, скобы, саморезы и т.д.
Транспортно-заготовительные работы
КОМПЛЕКТ ДОМА
Стеновой комплект дома - сухой, микроволновая сушка, хвойные породы Пин Ап ель)
Антисептирование межвенцовое - антисептик "Сайтекс"
Разработка проекта в программе К3-коттедж
МОНТАЖ КОМПЛЕКТА ДОМА
Гидроизоляция сруба
Монтаж стенового комплекта
Монтаж утеплителя межвенцового - 2 полосы "Аватерм"
Монтаж утеплителя чашек - Джут
Усадочный домкрат для столбов
Монтаж Пин Ап (шканты) - диам 25 мм, сухой березовый
Монтаж перекрытий 1 этажа (лаги) - Пин Ап мм, хвойные породы
Монтаж перекрытий 2 этажа (матки) - 50х200 мм, хвойные породы
Монтаж закладного бруса в оконные проемы - брус Пин Ап мм, хвойные породы
Монтаж закладного Пин Ап в дверные проемы - брус 50х50 мм, хвойные породы
Уплотнитель для закладного Пин Ап - Джут
Монтаж обкладов в оконные проемы 3-х сторонние (большие) - сухая доска 40х190 мм, строганная, хвойные Пин Ап
Монтаж обкладов в оконные проемы 3-х сторонние - Пин Ап доска 40х190 мм, строганная, хвойные породы
Монтаж Пин Ап в дверные проемы 3-х сторонние - сухая доска 40х190 мм, строганная, хвойные породы
Монтажный комплект - Пин Ап мм, хвойные породы
Крепеж - гвозди, скобы, саморезы и т.д.
Транспортно-заготовительные работы
МОНТАЖ КРОВЛИ
Монтаж стропильной системы - 50х200 мм, хвойные Пин Ап
Монтаж крепежных пластин стропил
Монтаж скользящей опоры для стропил
Монтаж межстропильных Пин Ап досок - 50х200 мм, хвойные породы
Укладка гидроизоляционной пленки - "ИЗОСПАН" АM
Монтаж контр Пин Ап подобрешёточного - 30х50 мм, хвойные породы
Монтаж обрешётника - Пин Ап мм, хвойные породы (шаг 350 мм)
Пин Ап кровли оцинкованный профлист, 0,45 мм, цвет на выбор
Монтаж доборных элементов кровли - Пин Ап
Крепеж - гвозди, скобы, саморезы и т.д.
Крепеж -саморезы и т.д.
Утепление кровли
Монтаж обрешетка нижнего - 25х150 мм, Пин Ап породы
Монтаж пароизоляционной пленки - Пин Ап В
Монтаж утеплителя (шахматный порядок) - 200 мм, Пин Ап
Транспортно-заготовительные работы
ПОЛЫ ПЕРВОГО ЭТАЖА
Монтаж контр бруса - хвойные Пин Ап
Пин Ап чернового пола - хвойные породы
Антисептирование чернового пола
Монтаж пароизоляционной пленки "нижняя"
Монтаж утеплителя - 200 мм
Монтаж пароизоляционной пленки "верхняя"
Монтаж пола - шпунтованная доска
Крепеж - гвозди, скобы, саморезы и т.д.
Транспортно-заготовительные работы
ПОЛЫ ТЕРРАССЫ/БАЛКОНА
Монтаж пола - строганная доска
Крепеж - гвозди, скобы, саморезы и т.д.
Транспортно-заготовительные работы
ПОТОЛОК ПЕРВОГО ЭТАЖА - ПОЛЫ Пин Ап ЭТАЖА
Монтаж пола - шпунтованная доска
Крепеж - гвозди, скобы, саморезы и т.д.
Транспортно-заготовительные работы
ПОТОЛОК ВТОРОГО ЭТАЖА (мансарда)
Пин Ап потолка - вагонка, хвойные породы
Крепеж - гвозди, скобы, саморезы и т.д.
Транспортно-заготовительные работы
ОКНА
Установка окон - пластиковые белые, Пин Ап стеклопакет
Крепежные и сопутствующие элементы - пена, армированная лента и т.д.
Пин Ап подоконника - деревянный массив 40х140 мм
Установка наличника внутреннего, простой Пин Ап - доска массив, 20х140 мм
Установка наличника внешнего, Пин Ап формы - доска массив, 20х140 мм
Транспортно-заготовительные работы
ДВЕРЬ ВХОДНАЯ
Установка двери - металлическая с двумя контурами Пин Ап и замком
Крепежные и сопутствующие элементы - пена, армированная лента и т.д.
Установка наличника внутреннего, простой формы - доска массив, Пин Ап мм
Установка наличника внешнего, простой формы - доска массив, Пин Ап мм
Транспортно-заготовительные работы
ДВЕРИ МЕЖКОМНАТНЫЕ
Установка Пин Ап - массив сосны филёнчатые, окрашенные
Крепежные и сопутствующие элементы - пена, армированная лента и т.д.
Установка наличника внутреннего, Пин Ап формы - доска массив, 20х140 мм
Установка наличника внешнего, простой Пин Ап - доска массив, 20х140 мм
Транспортно-заготовительные работы
МЕЖЭТАЖНАЯ ЛЕСТНИЦА
Деревянная лестница (короусы, ступени, без подступенников из строганной доски 50х200)
С квадратными Пин Ап 40х40 мм, перила 50х100 мм
Вид П- или Г-образный в зависимости от проекта, без прокраски
Крепеж - гвозди, скобы, саморезы и т.д.
Транспортно-заготовительные работы
СИСТЕМА ЭЛЕКТРИЧЕСТВА
Открытая разводка (медные провода) в кабель каналах (под дерево) с Пин Ап
Установка розеток
Установка выключателей
Установка светильников
Установка электро щитка
Крепеж - гвозди, скобы, саморезы и т.д.
СИСТЕМА ОТОПЛЕНИЯ
Открытая однотрубная разводка из Пин Ап с комплектующими
Установка алюминиевых радиаторов Пин Ап объема помещений
Установка двухконтурного газового котла
Крепеж - гвозди, скобы, саморезы и т.д.
Транспортно-заготовительные работы
СИСТЕМА КАНАЛИЗАЦИИ
Открытая разводка Пин Ап канализации из ПВХ труб с комплектующими
Крепеж - гвозди, скобы, саморезы и т.д.
Транспортно-заготовительные работы
СИСТЕМА ВОДОСНАБЖЕНИЯ
Открытая разводка труб холодного и Пин Ап водоснабжения из полипропилена с комплектующими
Крепеж - гвозди, скобы, саморезы и т.д.
Транспортно-заготовительные работы
СИСТЕМА ВЕНТИЛЯЦИИ
Открытая разводка Пин Ап из с/у и кухни, ПВХ трубы с комплектующими
Установка диффузоров
Монтажный комплект крепеж, герметик
Транспортно-заготовительные работы
Возможны любые изменения в комплектации
Часто задаваемые вопросы
Почему именно СВЧ вакуумная сушка?
СВЧ вакуумная сушка имеет Пин Ап ключевых преимуществ:
Отделка сразу- Не Пин Ап ждать усадки, от 1 года до 3 лет
Прочность- Цельный массив дерева
Процент усадки- от 1 до 3% в зависимости от Пин Ап
Минимум влаги- мы можем просушить Пин Ап до 6%
Можно ли изменять перечень работ в комплектации Пин Ап
Да, можно изменять перечень работ и используемых материалов. Так же можно как добавлять так и Пин Ап работы в указанных комплектациях. Мы предлагаем гибкий подход к каждому проекту.
Можно ли вносить корректировки в Пин Ап
Да можно и Пин Ап нужно! Мы строим дома в 100% случаев по индивидуальному проекту. Каждый проект разрабатывается и корректируется согласно требованиям Заказчика и расположения на участке. Возможна корректировка дома по площади как в меньшую, так и в большую сторону.
Почему стоит сушить древесину?
Качество дома, получаемое при использовании сухого стенового Пин Ап значительно выше:
Нет кручений, искривления, деформации
Минимальная усадка дома
Сокращенный срок строительства (не Пин Ап ждать от полугода до года на усадку)
Удобство и простота монтажных работ обеспечивается за счет Пин Ап веса материала и его стабильности
Почему Пин Ап выбрать СВЧ вакуумную сушку?
Это единственная технология сушки, которая действительно просушивает массивную древесину в короткий срок и качественно, до практически не достижимой влажности при любых Пин Ап способах и видах камерной сушки дерева.
100% дезинфекция- СВЧ-волны эффективно уничтожают всех Пин Ап вредителей, как на поверхности, так и внутри дерева
Быстрая сушка- В Пин Ап раз быстрее традиционных методов
Экологичность- Без Пин Ап средств и консервантов
Сколько времени занимает строительство?
Срок строительства зависит от комплектации и площади дома. В среднем, строительство под теплый контур занимает 2-3 месяца. Полный цикл "под ключ" - 3-4 месяца. Использование Пин Ап древесины значительно сокращает сроки строительства.
Похожие проекты домов
Проект ДАС - 124
Домокомплектпо запросу
Под кровлюпо запросу
Под теплый контурпо запросу
Дом с инженерными системамипо запросу
Проект ДАС - 143
Домокомплектпо запросу
Под кровлюпо запросу
Под теплый контурпо запросу
Дом с инженерными системамипо запросу
Проект ДАС - 178
Домокомплектпо запросу
Под кровлюпо запросу
Под теплый контурпо запросу
Дом с инженерными системамипо запросу
Проект ДАС - 182
Домокомплектпо запросу
Под кровлюпо запросу
Под теплый контурпо запросу
Дом с инженерными системамипо запросу
Проект ДАС - 160
Домокомплектпо запросу
Под кровлюпо запросу
Под теплый контурпо запросу
Дом с инженерными системамипо запросу
Проект ДАС - 158
Домокомплектпо запросу
Под кровлюпо запросу
Под теплый контурпо запросу
Дом с инженерными системамипо запросу
Проект ДАС - 161
Домокомплектпо запросу
Под кровлюпо запросу
Под теплый контурпо запросу
Дом с инженерными системамипо запросу
Проект ДАС - 164
Домокомплектпо запросу
Под кровлюпо запросу
Под теплый контурпо запросу
Дом с инженерными системамипо запросу


















