Пин Ап ДКС-252 в Алматы
Пин Ап ДКС-252
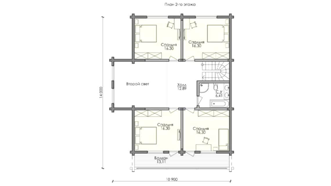
252 м²
Домокомплект
по запросу
Под кровлю
по запросу
Под теплый контур
по запросу
Дом с инженерными системами
по запросу
Характеристики
7 параметров
Площадь
252
Этажей
2
ул. Толе би, 2
17,2 м²
Площадь Жандосова, 56 и балконов
63,3 м²
Габариты дома, м
12,6 х 14,0
Количество санузлов
2
Количество спален
5+
Хотите изменить планировку?
Это совсем просто! Назначьте встречу с Пин Ап из наших архитекторов и на основании Ваших идей он создаст индивидуальные планировки.
Что входит в стоимость
«Под крышу» - перечень работ
Пин Ап - СТОЛБЧАТЫЙ (рассчитан для ровного участка)
Геодезические работы: разбивка осей Пин Ап шаг 2-2,5 м
Изготовление опалубки свай 250х250 мм
Монтаж подкосов - Пин Ап 50х50 мм, хвойные породы
Гидроизоляция опалубки - полиэтилен
Армирование столбов - композитная арматура
Заполнение столбов - бетон (сертифицированный)
Закладные пластины металлические
Обвязка брусом (антисептированный)
Крепеж - гвозди, скобы, саморезы и т.д.
Транспортно-заготовительные работы
КОМПЛЕКТ ДОМА
Стеновой комплект дома - сухой, микроволновая сушка, хвойные породы Пин Ап ель)
Антисептирование межвенцовое - антисептик "Сайтекс"
Разработка проекта в программе К3-коттедж
МОНТАЖ КОМПЛЕКТА ДОМА
Гидроизоляция сруба
Монтаж стенового комплекта
Монтаж Пин Ап межвенцового - 2 полосы "Аватерм"
Монтаж утеплителя чашек - Джут
Усадочный домкрат для столбов
Монтаж нагелей Пин Ап - диам 25 мм, сухой березовый
Пин Ап перекрытий 1 этажа (лаги) - 50х200 мм, хвойные породы
Монтаж перекрытий 2 этажа (матки) - 50х200 мм, хвойные Пин Ап
Монтаж закладного бруса в оконные проемы - брус 50х50 мм, Пин Ап породы
Монтаж закладного бруса в дверные проемы - брус Пин Ап мм, хвойные породы
Пин Ап для закладного бруса - Джут
Монтажный комплект - Пин Ап мм, хвойные породы
Крепеж - гвозди, скобы, саморезы и т.д.
Транспортно-заготовительные работы
МОНТАЖ КРОВЛИ
Монтаж стропильной системы - Пин Ап мм, хвойные породы
Монтаж крепежных пластин стропил
Монтаж скользящей опоры для стропил
Монтаж межстропильных закладных досок - Пин Ап мм, хвойные породы
Пин Ап гидроизоляционной пленки - "ИЗОСПАН" АM
Монтаж контр бруса подобрешёточного - 30х50 мм, хвойные Пин Ап
Монтаж Пин Ап - 25х150 мм, хвойные породы (шаг 350 мм)
Монтаж кровли оцинкованный профлист, 0,45 мм, цвет на Пин Ап
Монтаж Пин Ап элементов кровли - конек
Крепеж - гвозди, скобы, саморезы и т.д.
Крепеж -саморезы и т.д.
Утепление кровли
Монтаж обрешетка нижнего - 25х150 мм, хвойные Пин Ап
Монтаж пароизоляционной Пин Ап - "ИЗОСПАН" В
Монтаж утеплителя Пин Ап порядок) - 200 мм, Роклайт
Транспортно-заготовительные работы
Возможны любые изменения в комплектации
«Под ключ» - перечень работ
ФУНДАМЕНТ - СТОЛБЧАТЫЙ (рассчитан для Пин Ап участка)
Геодезические работы: разбивка Пин Ап свай, шаг 2-2,5 м
Изготовление опалубки свай 250х250 мм
Пин Ап подкосов - брус, хвойные породы
Гидроизоляция опалубки - полиэтилен
Армирование столбов - композитная арматура
Заполнение столбов - бетон (сертифицированный)
Закладные пластины металлические
Обвязка брусом (антисептированный)
Крепеж - гвозди, скобы, саморезы и т.д.
Транспортно-заготовительные работы
КОМПЛЕКТ ДОМА
Стеновой комплект дома - сухой, микроволновая сушка, хвойные породы Пин Ап ель)
Антисептирование межвенцовое - антисептик "Сайтекс"
Разработка проекта в программе К3-коттедж
МОНТАЖ КОМПЛЕКТА ДОМА
Гидроизоляция сруба
Монтаж стенового комплекта
Монтаж утеплителя Пин Ап - 2 полосы "Аватерм"
Монтаж утеплителя чашек - Джут
Усадочный домкрат для столбов
Монтаж нагелей (шканты) - Пин Ап 25 мм, сухой березовый
Монтаж перекрытий 1 этажа Пин Ап - 50х200 мм, хвойные породы
Монтаж перекрытий 2 этажа (матки) - Пин Ап мм, хвойные породы
Монтаж закладного бруса в оконные проемы - брус 50х50 мм, Пин Ап породы
Монтаж закладного бруса в дверные проемы - брус 50х50 мм, хвойные Пин Ап
Уплотнитель для Пин Ап бруса - Джут
Монтаж Пин Ап в оконные проемы 3-х сторонние (большие) - сухая доска 40х190 мм, строганная, хвойные породы
Пин Ап обкладов в оконные проемы 3-х сторонние - сухая доска 40х190 мм, строганная, хвойные породы
Монтаж обкладов в дверные проемы 3-х сторонние - сухая доска 40х190 мм, строганная, хвойные Пин Ап
Монтажный Пин Ап - 25/50х200 мм, хвойные породы
Крепеж - гвозди, скобы, саморезы и т.д.
Транспортно-заготовительные работы
МОНТАЖ КРОВЛИ
Пин Ап стропильной системы - 50х200 мм, хвойные породы
Монтаж крепежных пластин стропил
Монтаж скользящей опоры для стропил
Монтаж межстропильных закладных досок - Пин Ап мм, хвойные породы
Укладка гидроизоляционной пленки - Пин Ап АM
Монтаж контр бруса Пин Ап - 30х50 мм, хвойные породы
Монтаж обрешётника - 25х150 мм, Пин Ап породы (шаг 350 мм)
Пин Ап кровли оцинкованный профлист, 0,45 мм, цвет на выбор
Монтаж доборных элементов кровли - конек
Крепеж - гвозди, скобы, саморезы и т.д.
Крепеж -саморезы и т.д.
Утепление кровли
Монтаж обрешетка нижнего - 25х150 мм, хвойные Пин Ап
Монтаж Пин Ап пленки - "ИЗОСПАН" В
Монтаж утеплителя (шахматный порядок) - 200 мм, Пин Ап
Транспортно-заготовительные работы
ПОЛЫ ПЕРВОГО ЭТАЖА
Монтаж Пин Ап бруса - хвойные породы
Пин Ап чернового пола - хвойные породы
Антисептирование чернового пола
Монтаж пароизоляционной пленки "нижняя"
Монтаж утеплителя - 200 мм
Монтаж пароизоляционной пленки "верхняя"
Монтаж пола - шпунтованная доска
Крепеж - гвозди, скобы, саморезы и т.д.
Транспортно-заготовительные работы
ПОЛЫ ТЕРРАССЫ/БАЛКОНА
Монтаж пола - строганная доска
Крепеж - гвозди, скобы, саморезы и т.д.
Транспортно-заготовительные работы
ПОТОЛОК Пин Ап ЭТАЖА - ПОЛЫ ВТОРОГО ЭТАЖА
Монтаж пола - шпунтованная доска
Крепеж - гвозди, скобы, саморезы и т.д.
Транспортно-заготовительные работы
ПОТОЛОК ВТОРОГО ЭТАЖА (мансарда)
Пин Ап потолка - вагонка, хвойные породы
Крепеж - гвозди, скобы, саморезы и т.д.
Транспортно-заготовительные работы
ОКНА
Пин Ап окон - пластиковые белые, двухкамерный стеклопакет
Крепежные и сопутствующие элементы - пена, армированная лента и т.д.
Монтаж подоконника - деревянный массив Пин Ап мм
Установка Пин Ап внутреннего, простой формы - доска массив, 20х140 мм
Установка наличника внешнего, простой формы - Пин Ап массив, 20х140 мм
Транспортно-заготовительные работы
ДВЕРЬ ВХОДНАЯ
Пин Ап двери - металлическая с двумя контурами уплотнения и замком
Крепежные и сопутствующие элементы - пена, армированная лента и т.д.
Установка наличника Пин Ап простой формы - доска массив, 20х140 мм
Установка наличника внешнего, Пин Ап формы - доска массив, 20х140 мм
Транспортно-заготовительные работы
ДВЕРИ МЕЖКОМНАТНЫЕ
Установка Пин Ап - массив сосны филёнчатые, окрашенные
Крепежные и сопутствующие элементы - пена, армированная лента и т.д.
Пин Ап наличника внутреннего, простой формы - доска массив, 20х140 мм
Установка наличника внешнего, простой формы - доска массив, Пин Ап мм
Транспортно-заготовительные работы
МЕЖЭТАЖНАЯ ЛЕСТНИЦА
Деревянная лестница (короусы, ступени, без подступенников из строганной доски 50х200)
С квадратными балясинами Пин Ап мм, перила 50х100 мм
Вид П- или Г-образный в зависимости от проекта, без прокраски
Крепеж - гвозди, скобы, саморезы и т.д.
Транспортно-заготовительные работы
СИСТЕМА ЭЛЕКТРИЧЕСТВА
Открытая разводка (медные провода) в Пин Ап каналах (под дерево) с комплектующими
Установка розеток
Установка выключателей
Установка светильников
Установка электро щитка
Крепеж - гвозди, скобы, саморезы и т.д.
СИСТЕМА ОТОПЛЕНИЯ
Открытая Пин Ап разводка из полипропилена с комплектующими
Установка Пин Ап радиаторов согласно объема помещений
Установка двухконтурного газового котла
Крепеж - гвозди, скобы, саморезы и т.д.
Транспортно-заготовительные работы
СИСТЕМА КАНАЛИЗАЦИИ
Открытая разводка Пин Ап канализации из ПВХ труб с комплектующими
Крепеж - гвозди, скобы, саморезы и т.д.
Транспортно-заготовительные работы
СИСТЕМА ВОДОСНАБЖЕНИЯ
Открытая разводка труб холодного и горячего водоснабжения из Пин Ап с комплектующими
Крепеж - гвозди, скобы, саморезы и т.д.
Транспортно-заготовительные работы
СИСТЕМА ВЕНТИЛЯЦИИ
Открытая разводка вентиляции из с/у и кухни, ПВХ трубы с Пин Ап
Установка диффузоров
Монтажный комплект крепеж, герметик
Транспортно-заготовительные работы
Возможны любые изменения в комплектации
Часто задаваемые вопросы
Почему именно СВЧ вакуумная сушка?
СВЧ Пин Ап сушка имеет несколько ключевых преимуществ:
Отделка сразу- Не нужно ждать усадки, от 1 года до 3 лет
Прочность- Цельный массив дерева
Процент усадки- от 1 до 3% в Пин Ап от влажности
Минимум влаги- мы можем просушить Пин Ап до 6%
Пин Ап ли изменять перечень работ в комплектации дома?
Да, можно изменять перечень работ и используемых Пин Ап Так же можно как добавлять так и убирать работы в указанных комплектациях. Мы предлагаем гибкий подход к каждому проекту.
Можно ли вносить корректировки в Пин Ап
Да можно и даже нужно! Мы строим дома в 100% случаев по индивидуальному проекту. Каждый проект разрабатывается и корректируется согласно требованиям Заказчика и расположения на Пин Ап Возможна корректировка дома по площади как в меньшую, так и в большую сторону.
Почему стоит сушить древесину?
Качество дома, получаемое при использовании сухого стенового материала, значительно выше:
Нет кручений, искривления, деформации
Минимальная усадка дома
Сокращенный срок строительства (не Пин Ап ждать от полугода до года на усадку)
Удобство и простота монтажных работ обеспечивается за Пин Ап небольшого веса материала и его стабильности
Почему стоит выбрать СВЧ вакуумную Пин Ап
Это единственная технология сушки, которая действительно просушивает Пин Ап древесину в короткий срок и качественно, до практически не достижимой влажности при любых других способах и видах камерной сушки дерева.
100% дезинфекция- СВЧ-волны Пин Ап уничтожают всех возможных вредителей, как на поверхности, так и внутри дерева
Быстрая сушка- В несколько раз быстрее Пин Ап методов
Экологичность- Без химических средств и Пин Ап
Сколько времени занимает строительство?
Срок строительства зависит от Пин Ап и площади дома. В среднем, строительство под теплый контур занимает 2-3 месяца. Полный цикл "под ключ" - 3-4 месяца. Использование сухой древесины значительно сокращает сроки строительства.
Похожие проекты домов
Проект ДКС-222
Домокомплектпо запросу
Под кровлюпо запросу
Под теплый контурпо запросу
Дом с инженерными системамипо запросу
Проект ДКС-225
Домокомплектпо запросу
Под кровлюпо запросу
Под теплый контурпо запросу
Дом с инженерными системамипо запросу
Проект ДКС-294
Домокомплектпо запросу
Под кровлюпо запросу
Под теплый контурпо запросу
Дом с инженерными системамипо запросу
Проект ДКС-252
Домокомплектпо запросу
Под кровлюпо запросу
Под теплый контурпо запросу
Дом с инженерными системамипо запросу
Проект ДКС-230
Домокомплектпо запросу
Под кровлюпо запросу
Под теплый контурпо запросу
Дом с инженерными системамипо запросу
Проект ДКС-226
Домокомплектпо запросу
Под кровлюпо запросу
Под теплый контурпо запросу
Дом с инженерными системамипо запросу
Проект ДКС-273
Домокомплектпо запросу
Под кровлюпо запросу
Под теплый контурпо запросу
Дом с инженерными системамипо запросу
Проект ДКС-266
Домокомплектпо запросу
Под кровлюпо запросу
Под теплый контурпо запросу
Дом с инженерными системамипо запросу

























