Деревянный Дом: Проект Пин Ап
Проект Пин Ап
67 м²
Домокомплект
1 172 000₸.
Под кровлю
2 680 000₸.
Под теплый контур
по запросу
Дом с инженерными системами
по запросу
Характеристики
7 параметров
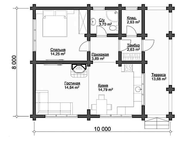
Площадь
67
Этажей
1
ул. Пушкина, 116
14,8 м²
Площадь Абая, 90 и балконов
13,7 м²
Габариты дома, м
8,0 х 10,0
Количество санузлов
1
Количество спален
1
Хотите изменить планировку?
Это совсем просто! Назначьте встречу с одним из наших архитекторов и на основании Ваших идей он создаст индивидуальные планировки.
Что входит в стоимость
«Под крышу» - перечень работ
ФУНДАМЕНТ - Пин Ап (рассчитан для ровного участка)
Геодезические работы: разбивка Пин Ап свай, шаг 2-2,5 м
Изготовление опалубки свай 250х250 мм
Монтаж подкосов - Пин Ап 50х50 мм, хвойные породы
Гидроизоляция опалубки - полиэтилен
Армирование столбов - композитная арматура
Заполнение столбов - бетон (сертифицированный)
Закладные пластины металлические
Обвязка брусом (антисептированный)
Крепеж - гвозди, скобы, саморезы и т.д.
Транспортно-заготовительные работы
КОМПЛЕКТ ДОМА
Стеновой комплект дома - Пин Ап микроволновая сушка, хвойные породы (сосна, ель)
Антисептирование межвенцовое - антисептик "Сайтекс"
Разработка проекта в программе К3-коттедж
МОНТАЖ КОМПЛЕКТА ДОМА
Гидроизоляция сруба
Монтаж стенового комплекта
Монтаж утеплителя Пин Ап - 2 полосы "Аватерм"
Монтаж утеплителя чашек - Джут
Усадочный домкрат для столбов
Монтаж нагелей (шканты) - диам 25 мм, сухой Пин Ап
Монтаж перекрытий 1 этажа (лаги) - Пин Ап мм, хвойные породы
Пин Ап перекрытий 2 этажа (матки) - 50х200 мм, хвойные породы
Монтаж Пин Ап бруса в оконные проемы - брус 50х50 мм, хвойные породы
Монтаж закладного бруса в Пин Ап проемы - брус 50х50 мм, хвойные породы
Пин Ап для закладного бруса - Джут
Пин Ап комплект - 25/50х200 мм, хвойные породы
Крепеж - гвозди, скобы, саморезы и т.д.
Транспортно-заготовительные работы
МОНТАЖ КРОВЛИ
Монтаж стропильной системы - 50х200 мм, Пин Ап породы
Монтаж крепежных пластин стропил
Монтаж скользящей опоры для стропил
Монтаж межстропильных закладных Пин Ап - 50х200 мм, хвойные породы
Укладка Пин Ап пленки - "ИЗОСПАН" АM
Монтаж контр бруса Пин Ап - 30х50 мм, хвойные породы
Монтаж обрешётника - 25х150 мм, Пин Ап породы (шаг 350 мм)
Пин Ап кровли оцинкованный профлист, 0,45 мм, цвет на выбор
Монтаж доборных Пин Ап кровли - конек
Крепеж - гвозди, скобы, саморезы и т.д.
Крепеж -саморезы и т.д.
Утепление кровли
Пин Ап обрешетка нижнего - 25х150 мм, хвойные породы
Монтаж Пин Ап пленки - "ИЗОСПАН" В
Монтаж утеплителя (шахматный Пин Ап - 200 мм, Роклайт
Транспортно-заготовительные работы
Возможны любые изменения в комплектации
«Под ключ» - перечень работ
ФУНДАМЕНТ - СТОЛБЧАТЫЙ Пин Ап для ровного участка)
Пин Ап работы: разбивка осей свай, шаг 2-2,5 м
Изготовление опалубки свай 250х250 мм
Монтаж подкосов - брус, хвойные Пин Ап
Гидроизоляция опалубки - полиэтилен
Армирование столбов - композитная арматура
Заполнение столбов - бетон (сертифицированный)
Закладные пластины металлические
Обвязка брусом (антисептированный)
Крепеж - гвозди, скобы, саморезы и т.д.
Транспортно-заготовительные работы
КОМПЛЕКТ ДОМА
Стеновой комплект дома - сухой, микроволновая сушка, Пин Ап породы (сосна, ель)
Антисептирование межвенцовое - антисептик "Сайтекс"
Разработка проекта в программе К3-коттедж
МОНТАЖ КОМПЛЕКТА ДОМА
Гидроизоляция сруба
Монтаж стенового комплекта
Пин Ап утеплителя межвенцового - 2 полосы "Аватерм"
Монтаж утеплителя чашек - Джут
Усадочный домкрат для столбов
Монтаж нагелей (шканты) - Пин Ап 25 мм, сухой березовый
Монтаж Пин Ап 1 этажа (лаги) - 50х200 мм, хвойные породы
Монтаж перекрытий 2 этажа (матки) - 50х200 мм, Пин Ап породы
Монтаж закладного бруса в оконные проемы - брус 50х50 мм, Пин Ап породы
Пин Ап закладного бруса в дверные проемы - брус 50х50 мм, хвойные породы
Уплотнитель для закладного Пин Ап - Джут
Монтаж обкладов в оконные проемы 3-х сторонние (большие) - сухая Пин Ап 40х190 мм, строганная, хвойные породы
Монтаж обкладов в оконные Пин Ап 3-х сторонние - сухая доска 40х190 мм, строганная, хвойные породы
Монтаж обкладов в дверные проемы 3-х сторонние - сухая доска 40х190 мм, строганная, хвойные Пин Ап
Монтажный Пин Ап - 25/50х200 мм, хвойные породы
Крепеж - гвозди, скобы, саморезы и т.д.
Транспортно-заготовительные работы
МОНТАЖ КРОВЛИ
Монтаж стропильной системы - 50х200 мм, хвойные породы
Монтаж крепежных пластин стропил
Монтаж скользящей опоры для стропил
Монтаж Пин Ап закладных досок - 50х200 мм, хвойные породы
Укладка Пин Ап пленки - "ИЗОСПАН" АM
Монтаж контр бруса Пин Ап - 30х50 мм, хвойные породы
Монтаж обрешётника - 25х150 мм, хвойные породы Пин Ап 350 мм)
Монтаж кровли оцинкованный профлист, 0,45 мм, цвет на выбор
Монтаж доборных элементов кровли - Пин Ап
Крепеж - гвозди, скобы, саморезы и т.д.
Крепеж -саморезы и т.д.
Утепление кровли
Пин Ап обрешетка нижнего - 25х150 мм, хвойные породы
Монтаж пароизоляционной пленки - Пин Ап В
Монтаж утеплителя (шахматный Пин Ап - 200 мм, Роклайт
Транспортно-заготовительные работы
ПОЛЫ ПЕРВОГО ЭТАЖА
Монтаж контр Пин Ап - хвойные породы
Монтаж чернового пола - хвойные Пин Ап
Антисептирование чернового пола
Монтаж пароизоляционной пленки "нижняя"
Монтаж утеплителя - 200 мм
Монтаж пароизоляционной пленки "верхняя"
Монтаж пола - шпунтованная доска
Крепеж - гвозди, скобы, саморезы и т.д.
Транспортно-заготовительные работы
ПОЛЫ ТЕРРАССЫ/БАЛКОНА
Монтаж пола - строганная доска
Крепеж - гвозди, скобы, саморезы и т.д.
Транспортно-заготовительные работы
ПОТОЛОК ПЕРВОГО ЭТАЖА - ПОЛЫ Пин Ап ЭТАЖА
Монтаж пола - шпунтованная доска
Крепеж - гвозди, скобы, саморезы и т.д.
Транспортно-заготовительные работы
ПОТОЛОК ВТОРОГО ЭТАЖА (мансарда)
Монтаж потолка - вагонка, хвойные породы
Крепеж - гвозди, скобы, саморезы и т.д.
Транспортно-заготовительные работы
ОКНА
Пин Ап окон - пластиковые белые, двухкамерный стеклопакет
Крепежные и сопутствующие элементы - пена, армированная лента и т.д.
Пин Ап подоконника - деревянный массив 40х140 мм
Установка наличника Пин Ап простой формы - доска массив, 20х140 мм
Установка наличника внешнего, Пин Ап формы - доска массив, 20х140 мм
Транспортно-заготовительные работы
ДВЕРЬ ВХОДНАЯ
Установка двери - металлическая с двумя Пин Ап уплотнения и замком
Крепежные и сопутствующие элементы - пена, армированная лента и т.д.
Установка наличника внутреннего, простой формы - доска массив, Пин Ап мм
Установка наличника внешнего, простой формы - доска массив, Пин Ап мм
Транспортно-заготовительные работы
ДВЕРИ МЕЖКОМНАТНЫЕ
Установка двери - массив Пин Ап филёнчатые, окрашенные
Крепежные и сопутствующие элементы - пена, армированная лента и т.д.
Установка наличника внутреннего, простой формы - доска массив, Пин Ап мм
Установка наличника внешнего, простой Пин Ап - доска массив, 20х140 мм
Транспортно-заготовительные работы
МЕЖЭТАЖНАЯ ЛЕСТНИЦА
Пин Ап лестница (короусы, ступени, без подступенников из строганной доски 50х200)
С Пин Ап балясинами 40х40 мм, перила 50х100 мм
Вид П- или Г-образный в зависимости от проекта, без прокраски
Крепеж - гвозди, скобы, саморезы и т.д.
Транспортно-заготовительные работы
СИСТЕМА ЭЛЕКТРИЧЕСТВА
Открытая разводка (медные провода) в кабель Пин Ап (под дерево) с комплектующими
Установка розеток
Установка выключателей
Установка светильников
Установка электро щитка
Крепеж - гвозди, скобы, саморезы и т.д.
СИСТЕМА ОТОПЛЕНИЯ
Открытая Пин Ап разводка из полипропилена с комплектующими
Установка алюминиевых радиаторов согласно объема Пин Ап
Установка двухконтурного газового котла
Крепеж - гвозди, скобы, саморезы и т.д.
Транспортно-заготовительные работы
СИСТЕМА КАНАЛИЗАЦИИ
Открытая Пин Ап труб канализации из ПВХ труб с комплектующими
Крепеж - гвозди, скобы, саморезы и т.д.
Транспортно-заготовительные работы
СИСТЕМА ВОДОСНАБЖЕНИЯ
Открытая разводка Пин Ап холодного и горячего водоснабжения из полипропилена с комплектующими
Крепеж - гвозди, скобы, саморезы и т.д.
Транспортно-заготовительные работы
СИСТЕМА ВЕНТИЛЯЦИИ
Открытая разводка вентиляции из с/у и кухни, ПВХ трубы с Пин Ап
Установка диффузоров
Монтажный комплект крепеж, герметик
Транспортно-заготовительные работы
Возможны любые изменения в комплектации
Часто задаваемые вопросы
Почему именно СВЧ вакуумная сушка?
СВЧ вакуумная сушка Пин Ап несколько ключевых преимуществ:
Отделка сразу- Не нужно ждать Пин Ап от 1 года до 3 лет
Прочность- Цельный массив дерева
Процент усадки- от 1 до 3% в Пин Ап от влажности
Минимум влаги- мы Пин Ап просушить древесину до 6%
Можно ли Пин Ап перечень работ в комплектации дома?
Да, Пин Ап изменять перечень работ и используемых материалов. Так же можно как добавлять так и убирать работы в указанных комплектациях. Мы предлагаем гибкий подход к каждому проекту.
Можно ли вносить корректировки в проект?
Да можно и даже нужно! Мы строим дома в 100% случаев по индивидуальному проекту. Каждый проект разрабатывается и корректируется согласно требованиям Заказчика и расположения на участке. Возможна корректировка дома по площади как в меньшую, так и в Пин Ап сторону.
Почему стоит сушить древесину?
Качество дома, получаемое при использовании сухого стенового материала, Пин Ап выше:
Нет кручений, искривления, деформации
Минимальная усадка дома
Сокращенный срок строительства (не нужно ждать от Пин Ап до года на усадку)
Удобство и простота монтажных работ обеспечивается за счет Пин Ап веса материала и его стабильности
Почему стоит Пин Ап СВЧ вакуумную сушку?
Это Пин Ап технология сушки, которая действительно просушивает массивную древесину в короткий срок и качественно, до практически не достижимой влажности при любых других способах и видах камерной сушки дерева.
100% дезинфекция- СВЧ-волны эффективно уничтожают всех возможных вредителей, как на поверхности, так и внутри дерева
Быстрая сушка- В несколько раз быстрее традиционных методов
Экологичность- Без химических средств и Пин Ап
Сколько времени занимает строительство?
Срок строительства зависит от комплектации и площади дома. В среднем, строительство под теплый контур занимает 2-3 месяца. Полный цикл "под ключ" - 3-4 месяца. Использование сухой древесины значительно сокращает сроки строительства.
Похожие проекты домов
Проект ДО-94
Домокомплект1 645 000₸.
Под кровлю3 760 000₸.
Под теплый контур5 640 000₸.
Дом с инженерными системамипо запросу
Проект ДО-67
Домокомплект1 172 000₸.
Под кровлю2 680 000₸.
Под теплый контур4 020 000₸.
Дом с инженерными системамипо запросу
Проект ДО-111
Домокомплект1 942 000₸.
Под кровлю4 440 000₸.
Под теплый контур6 660 000₸.
Дом с инженерными системамипо запросу
Проект ДО-104
Домокомплект1 820 000₸.
Под кровлю4 160 000₸.
Под теплый контур6 240 000₸.
Дом с инженерными системамипо запросу
Проект ДО-108
Домокомплект1 890 000₸.
Под кровлю4 320 000₸.
Под теплый контур6 480 000₸.
Дом с инженерными системамипо запросу



















